Logo Přihlásit | Registrovat

Přihlášení


Registrace do programu DEKPARTNER

Přihlašovací údaje
Zaměření*
Kontaktní údaje

Zapomenuté heslo


Vzdělávací centrum

DEKCASSETTE IDEAL - NOVÝ TYP FASÁDNÍ KAZETY OD VÝVOJE PO PRAKTICKÉ POUŽITÍ

Fasádní systém DEKMETAL
DEKMETAL patří k tradičním českým výrobcům kovových provětrávaných fasádních systémů a plechových střešních krytin. Fasádní systém DEKMETAL našel od roku 2003 uplatnění na několika tisících objektů nejen v České republice, ale i v zahraničí.

Během této doby DEKMETAL sbíral od projektantů a architektů podněty pro zlepšení fasádního systému, který se doplnil o nepřeberné množství systémových detailů a řešení návazností. To nutně vyvolalo rozšíření výrobkového portfolia. Do systému tak přibylo několik set druhů lemovacích lišt, zakládacích či okapních profilů, rohů, koutů, ostění, ukončovacích lišt a celá řada dalších profilů. Na konci roku 2015 přibyla do sortimentu nová varianta fasádních plechových kazet, která reaguje na potřeby architektů.

DEKCASSETTE IDEAL

Naše snaha připravit pro technické a architektonické řešení fasádního systému DEKMETAL to nejlepší vyvrcholila po třech letech vývoje, stavebních úprav a instalace nového výrobního zařízení v září 2015 výrobou nové fasádní kazety DEKCASSETTE IDEAL.

foto 1 1 Konstrukční obrázek kazety DEKCASSETTE IDEAL

Při vývoji kazety DEKCASSETTE IDEAL se uplatnily především poznatky od uživatelů, které jsme se v maximální možné míře snažili přenést do nové technologie. Za znatelný pokrok lze považovat informaci o maximálním výrobním rozměru kazety – výška do 80 cm, délka do 6 m (viz obr. 2). Připomeňme si, že tradiční rozměry obkladových kazet nepřesahují výšku 45 cm a délku 3 m. Nepatrně musely být pozměněny rozměry u veškerého příslušenství lišt a lemovacích prvků - hloubka kazety DEKCASSETTE IDEAL je 32 mm (u starších typů kazet je hloubka 30mm). DEKCASSETTE IDEAL lze vyrábět nejen v obvyklých obdélníkových tvarech, ale i tvarech lichoběžných. Jsme také připraveni čelit požadavkům na výrobu zcela atypických řešení a tvarů kazet. Typické tloušťky plechu jsou 1,0 mm a 0,75 mm

foto 2 2 Testování výroby nejdelších možných výrobků DEKCASSETTE IDEAL

Při vývoji samotného výrobku jsme věnovali dlouhý čas ověřování vhodnosti tvaru nově navrženého zámku kazety, stejně jako bezproblémovosti montáže. Nový zámek umožňuje montáž kazet s ideálním překrytím jednotlivých kazet. Při hnaném dešti voda nezatéká za kazety a také nezůstává v systému zámků, ale plynule stéká po exteriérové části kazet až na nejnižší pozici fasádního opláštění, kterým je okapní lišta.

Podrobné technické informace, technický list, materiálové a barevné řešení fasádního systému s kazetou DEKCASSETTE IDEAL naleznete ZDE.

Nosný rošt, montáž

Nosnou konstrukci kazet DEKCASSETTE IDEAL může tvořit jednosměrný či dvousměrný rošt DEKMETAL (DKM1A resp. DKM2A).

foto 3 3 Instalace kazet DEKCASSETTE IDEAL na nosný rošt

Při montáží DEKCASSETTE IDEAL je velmi pozitivně hodnocen nový tvar zámku, který umožňuje jednoduchou a plynulou montáž od zakládací úrovně směrem vzhůru. Pro montáž přínosným se ukázalo i nové řešení kotevních otvorů, které jsou nyní provedeny jako průběžné po celé délce kazety. Kotevní otvory jsou oválného tvaru a umožňují tak délkovou dilataci jednotlivých kazet. Často se vyskytující požadavky architektů vedly k vytvořené skrytého kotvení kazet.

foto 4 4 Detail provedení zámku a kotevních otvorů kazety DEKCASSETTE IDEAL

Při návrhu kazet velkého rozměru by měl projektant z důvodu manipulace uvažovat s hmotností jednotlivých prvků - kazeta rozměru 0,8 x 6 m při tloušťce plechu 1,2 mm váží přibližně 60 kg. To je zajisté nadstandardní hmotnost pro manipulaci na lešení v nejvyšších patrech výškových objektů.

Při návrhu konkrétního fasádního spárořezu lze počítat s možností střídání velikostí spár v rozmezí 5 až 50 mm a to ve svislém i vodorovném směru. Taktéž není nutné držet linii svislé spáry v přímce nad sebou, spáru je možné umístit v libovolném místě délky kazety a tím docílit velmi netradičního rastrování.

Technická podpora

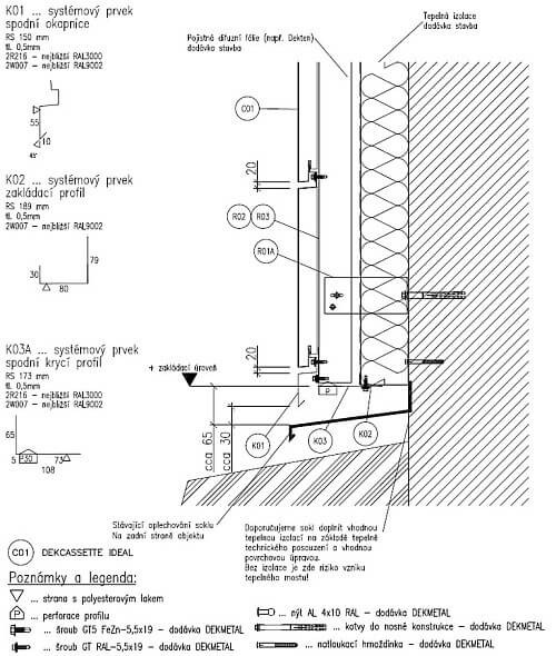
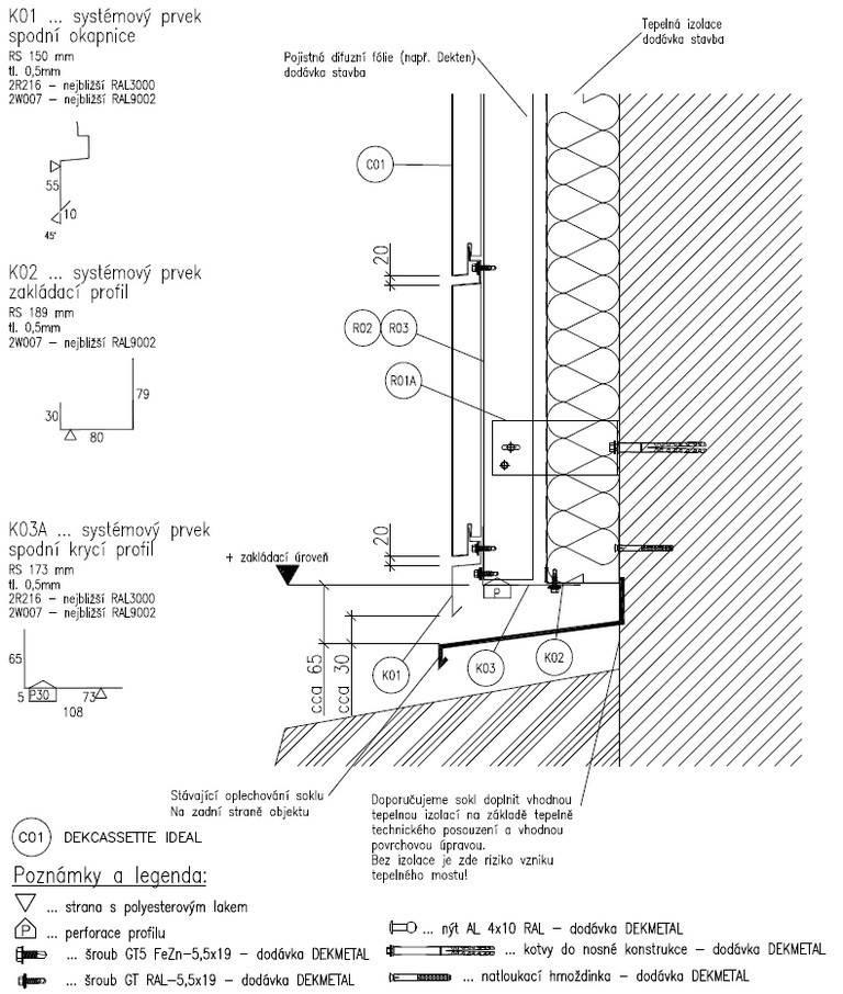
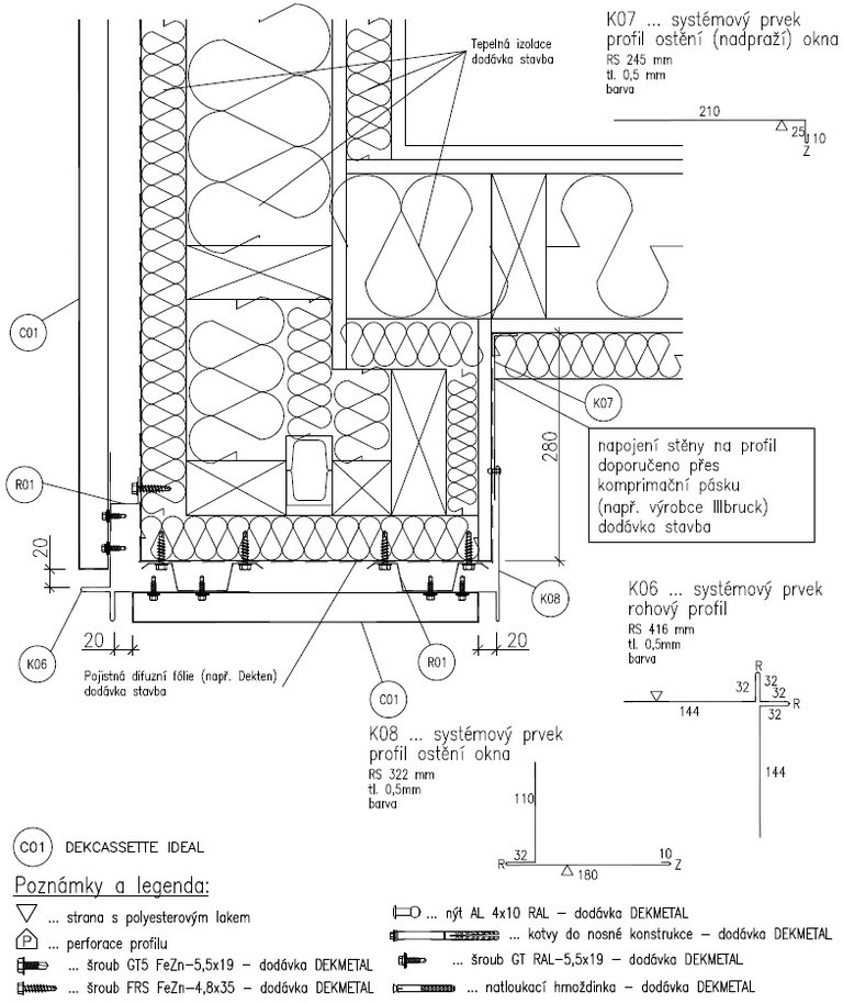
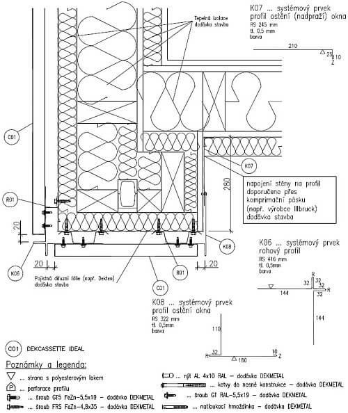
S ohledem na rozšíření výrobních možností, byla rozšířena i sada typických detailů v DWG formátu poskytovaná bezplatně všem registrovaným architektům a projektantům v rámci programu DEKPARTNER. Došlo též k celkové aktualizaci a navýšení počtu typických detailů u všech stávajících produktových řad. Detaily je tak možné volně použít do projektů, případně ke konzultacím uvažovaných návrhů.

Společnost DEKMETAL úzce spolupracuje s architekty a projektanty již od samého počátku projektu a je schopna nabídnout komplexní technickou podporu týkající se obvodového pláště konkrétního objektu. Samotná montážní dokumentace je pak zpracována technickým oddělením společnosti DEKMETAL a dle požadavků je konzultována s architektem nebo projektantem stavby. Technici DEKMETALU zajišťují zaměření staveb po celé České i Slovenské republice. Nedílnou součástí podpory DEKMETAL jsou technické konzultace v průběhu montáže a pravidelné školení realizačních firem přímo ve výrobním závodě, včetně ukázky samotné výroby a používaných technologií.

Nástavba Nemocnice Městec

foto 5 5 Nosnou část nástavby tvořila ocelová konstrukce
foto 6 6 Ocelová konstrukce opláštěna OSB deskami
foto 7 7 Detail návaznosti v rohové části s vystupujícím lemem
foto 8 8 Stavební rozpracovanost rohové části
foto 9 9 Osazený nosný rošt DEKMETAL v rohu objektu. Na parapetu provedena doplňková hydroizolační vrstva
foto 10 10 Osazení lemovacích profilů v přechodu na podhled, na roh osazeno vystupující lemování
foto 11 11 Dokončování fasády – v předsazené části systém DEKMETAL s kazetou DEKCASSETTE IDEAL, v dolní části zateplení kontaktní zateplovacím systémem
foto 12 12 Konečné provedení podhledu
foto 13 13 Pohled na hotové opláštění v kombinaci provětrávaného pláště s kazetami DEKCASSETTE IDEAL a kontaktního zateplení

Rekonstrukce hasičské zbrojnice Plchov

foto 14 14 Nevyhovující stav objektu hasičské zbrojnice Plchov vyžadoval zateplení a nové provedení fasády
foto 15 15 Nesoudržná omítka musela být odstraněna
foto 16 16 Řešení fasády v soklové části počítalo s využitím stávajícího oplechování soklu
foto 17 17 Osazený podkladní rošt pro montáž kazet DEKCASSETTE IDEAL
foto 18 18 Lemovací prvky byly provedeny ve vícebarevném provedení s ohledem na barevnost fasádního obkladu
foto 19 19 Kazetový obklad je možné barevně kombinovat, případně i střídat ve spárořezu
foto 20 20 Detail provedení návaznosti lemování a kazetového obkladu různé barvy
foto 21 21 Detail provedení návaznosti lemování a kazetového obkladu
foto 22 22 Štítové kazety provedeny dostřihem a lemováním
foto 23 23 Červené obdélníky z kazet DEKCASSETTE IDEAL tvoří při pohledu na objekt falešná vrata – zvýrazňují účel objektu hasičské zbrojnice

Novostavba prezentačního centra Tatra Kopřivnice

foto 24 24 Různé materiálové provedení podkladní konstrukce fasádního systému DEKMETAL
foto 25 25 Nosný rošt umožňuje řešit i odskoky a rozdílné návaznosti podkladních konstrukcí (vpředu nezateplená část zdiva)
foto 26 26 Detail ukončení fasádního systému DEKMETAL u atiky
foto 27 27 Realizační provedení musí počítat i s návazností na hlavní hydroizolační vrstvu střechy
foto 28 28 Dokončování kazetového obkladu
foto 29 29 Detail spárového provedení a uzavření DEKCASSETTE IDEAL
foto 30 30 DEKCASSETTE IDEAL použity jak v ploše fasády, tak i v podhledu
foto 31 31 Pohled na vstupní partii budovy prezentačního centra Tatra Kopřivnice

Ing. Evžen Janeček
vedoucí technického oddělení DEKMETAL s.r.o.

Partneři programu