Logo Přihlásit | Registrovat

Přihlášení


Registrace do programu DEKPARTNER

Přihlašovací údaje
Zaměření*
Kontaktní údaje

Zapomenuté heslo


Vzdělávací centrum

DUALDEK se uplatní i v suterénu rodinného domu

Zveřejněno: 7. 12. 2017
Článek byl publikován v

Naskytla se nám příležitost podílet se návrhu a následně sledovat realizaci řešení hydroizolační koncepce pro suterén rozsáhlejšího rodinného domu, kde projektant velmi správně uplatnil hlediska spolehlivosti.

Článek vyšel také ve SBORNÍKU SEMINÁŘE 2019 (viz pdf).

Dům je částečně podsklepen, podloží tvoří nepropustné horniny. Na základě vyhodnocení hydrogeologických poměrů projektant správně vyhodnotil, že až do úrovně 1 m nad podlahou suterénu může být kolem suterénu podzemní voda. V suterénu domu se počítá s provozem vyžadujícím suché konstrukce a běžné vnitřní prostředí. Je zde mimo jiné umístěna dojezdová šachta výtahu, jejíž zaplavení by bezpochyby vedlo k vyřazení výtahu z provozu, a tím k omezení užívání domu.

Požadavek na míru ochrany vnitřních prostor a konstrukcí před vodou a předpoklad působení tlakové vody z vnější strany na suterén vedly k návrhu povlakového hydroizolačního systému umožňujícího kontrolovat v různých etapách výstavby i užívání těsnost a dodatečné utěsnění v případě defektu. Uplatnil se fóliový systém DUALDEK provedený „do vany“, ale v otevřené stavební jámě. Vana byla provedena z perfektně zpracovaného železobetonu. Do stěn byly zabudovány nerezové prvky přírub pro těsné provedení prostupů.

Zkusme ověřit správnost návrhu postupem podle směrnice ČHIS 01:

  • návrhové namáhání vodou: NNV 7
  • třída ochrany vnitřních prostor: P2
  • třída ochrany konstrukcí: K2
  • hodnocení přístupnosti hydroizolace pro případnou opravu nebo výměnu hydroizolace - svislá z interiéru i exteriéru R3, vodorovná R4
  • požadavek na účinnost a spolehlivost obvodových konstrukcí alespoň U2 / S2 s dovětkem: raději neumisťovat chráněný prostor do kontaktu s vodou namáhaným obvodem stavby
  • hodnocení dvojité fóliové sektorované hydroizolace s kontrolními a injektážními trubicemi dle tabulky 12 ve směrnici ČHIS 01: U1 / S2

Projektant si mohl dovolit nevyslyšet doporučení o kontaktu s vodou namáhaným obvodem stavby díky přiměřenému rozsahu stavby, jednoduchému tvaru suterénu bez dilatací a také díky tomu, že předem znal zhotovitele stavby, jeho reference, pracovní postupy i systém řízení kvality.

Je třeba připomenout, že velkou pozornost vyžadovalo řešení detailů ukončení hydroizolačního systému na obvodu stavby u terénu.

Zkušenost dodavatele stavby, vysoká erudice projektanta spolu se zručností a zkušeností dodavatele hydroizolačního systému vedly k úspěchu. Dům je v současné době zkolaudován a suterén domu je užíván bez jakýchkoli vlhkostních poruch.

Skladby obvodových konstrukcí suterénu byly realizovány v následujícím složení:

Skladba odvodové suterénní stěny od interiéru:
  • železobetonová suterénní stěna tl. 200 mm
  • kluzná vrstva z polyethylenové fólie DEKSEPAR tl. 0,2 mm
  • ochranná geotextilie z polypropylenových vláken 500 g/m2 FILTEK 500
  • dvojitý hydroizolační systém DUALDEK:
    • hydroizolační fólie z mPVC ALKORPLAN 35034 tl. 2 mm
    • drenážní vrstva z prostorové rohože DEKDREN P900
    • hydroizolační fólie z mPVC ALKORPLAN 35034 tl. 2 mm
  • ochranná geotextilie z polypropylenových vláken 500 g/m2 FILTEK 500
  • tepelná izolace extrudovaný polystyren tl. 140 mm
  • železobetonová stěna hydroizolační vany (pažení) tl. 150 mm
  • zemina
obr01
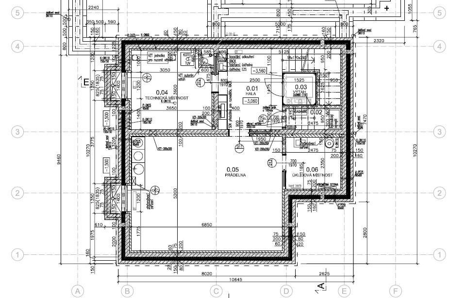
Obr. 1 - Půdorys suterénu.
obr02
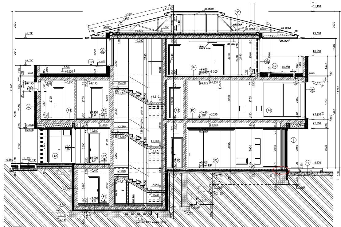
Obr. 2 - Řez objektem.
obr03
Obr. 3 - Půdorys sektorů DUALDEK.
obr04
Obr. 4 - Železobetonové stěny hydroizolační vany mají tl. 150 mm.
obr05
Obr. 5 - Nalepený XPS tl. 140 mm na stěnách železobetonové hydroizolační vany.
obr06
Obr. 6 - Pověšená geotextilie FILTEK 500 na vrstvě XPS.
obr07
Obr. 7 - Hotová vnější vrstva fólie ALKORPLAN 35 034 tl. 2 mm, začátek aplikace drenážní vrstvy z rohože DEKDREN P900 na stěny.
obr08
Obr. 8 - Aplikace injektážní perforované hadičky v přechodovém sektoru.
obr09
Obr. 9 - Hotová vnitřní vrstva fólie ALKORPLAN 35 034 tl. 2 mm a kontrolní šachty v budoucí základové desce, ve kterých se sdružují kontrolní a injektážní hadice.
obr10
Obr. 10 - Ukončení kontrolních a injektážních hadic v nice budoucí stěny.
obr11
Obr. 11 - Pohled na stěnu s nerezovými přírubami prostupů.
obr12
Obr. 12 - Nerezová příruba prostupu.
obr13
Obr. 13 - Provedena ochranná betonová mazanina, nad ní probíhá vázání výztuže základové desky. Na stěnách je druhá vrstva geotextilie FILTEK 500 včetně PE fólie DEKSEPAR.
obr14
Obr. 14 - Příruby a kontrolní šachta ve stěně před betonáží.
obr15
Obr. 15 - Potrubí osazené v nerezové pažnici prostupu a utěsněné svěrným pryžovým těsněním.
obr16
Obr. 16 - Pohled na kontrolní trubice po odbědnění ŽB stěny suterénu.
obr17
Obr. 17 - Ukázka obvodu stavby, kde bylo nutné realizovat více variant ukončení hydroizolačního systému.
obr18
Obr. 18 – Celkový pohled na dokončený rodinný dům
obr19
Obr. 19 – Pohled do interiéru 1. NP.

Příspěvek projektanta Ing. arch. Karla Veselého, in.Spira Group s.r.o.:

Rodinný dům je koncipován jako vila s jedním podzemním podlažím, 2 nadzemními podlažími a ustupujícím podkrovím. Zastavěná plocha domem činí 242,9 m2. Architektonicky využívá svažitého pozemku a otevírá se ve směru výhledu. Je založena na jednoduchém výrazu tvořeném plochou bílé fasády s velkými okenními plochami postavené na přízemní podnoži s černým kamenným obkladem a ukončující střechou s velkým přesahem a lemující ocelovou válcovanou tyčí po obvodě.

Z pohledu zakládání se staveniště nalézalo ve složitých základových poměrech - nacházelo se ve svážném terénu, základová půda byla středně únosná a hladina podzemní vody byla nad základovou spárou objektu domu. Hned vedle objektu protéká pramen - studna je i po rekonstrukci zachována - a jeho ustálená hladina se nachází cca 1 m nad čistou podlahou suterénu. Proto jsme projekčně zvolili nejbezpečnější řešení, o kterém jsme přesvědčeni, že nabízí spolehlivost v průběhu výstavby i životnosti objektu - DUALDEK, systém s dvojitou hydroizolací z mPVC 2×2 mm s možností kontroly a aktivace.

Velmi se osvědčila příprava formou dílenského projektu na přesné sektorování a navázání na systém kontrolních a aktivačních hadic. Realizace probíhala přesně podle projektu a následně se těsnost systému kontrolovala po každém zásadním kroku realizace suterénu (železářské práce, betonářské práce, konečný stav).

Rodinný dům je v současnosti dokončen a zkolaudován. Investor připravuje stěhování a my máme v tomto čase možnost ověření si bezvadného stavu suterénního zdiva (železobeton) a prostupů. Šachty, ať již ve stěnách či v podlaze, jsou zapracovány do interiéru - vodorovné jsou opatřené shodnou dlažbou jako ve zbytku interiéru, avšak odnímatelnou, menší systémovým plastovým poklopem, vodorovné jsou kryty nerezovým plechem. Protože bude i suterén s výměrou bezmála 80 m2 aktivně využíván, považujeme za skvělý výsledek, že jeho interiér nehandicapuje žádný defekt a tak, jako celý dům, se pomalu připravuje na aktivní využívání.

PROJEKTANT: in.Spira Group, s.r.o.

GENERÁLNÍ DODAVATEL: AMA invest, s.r.o.

DODAVATEL HYDROIZOLAČNÍ KONSTRUKCE: LAJTIZOL s.r.o., Karel Lajtkep

Autor:
Ing. Libor Koubek
technik Atelieru DEK působící na pobočce Stavebnin DEK Praha Zličín
libor.koubek@dek-cz.com, +420 737 281 295

autor
autor
Partneři programu