Logo Přihlásit | Registrovat

Přihlášení


Registrace do programu DEKPARTNER

Přihlašovací údaje
Zaměření*
Kontaktní údaje

Zapomenuté heslo


Vzdělávací centrum

GEOMETRICKÁ PŘESNOST VE STAVEBNICTVÍ

Zveřejněno: 5. 4. 2015
Ing. Daniel Mašlár
DEKPROJEKT s.r.o., projektant
Všechny články autora
Ing. Linda Veselá
Metrostav a.s.
Všechny články autora

Geometrická přesnost je jednou z kategorií hodnocení kvality staveb. V případě nedostatečně přesných stavebních konstrukcí jsou tyto nedokonalosti viditelné pouhým okem i pro naprostého laika a tak je nekvalitní dílo často odhaleno ihned při předání stavby objednateli, a to bez nutnosti provádění sond a odborných hloubkových průzkumů.

Nejistota u soudu

Bohužel prokazování nekvalitního díla je i přes jeho zjevnost často velmi problematické. Stávající platné normy, které se geometrickou přesností zabývají, jsou často nejasné a zmatené. Vzhledem k tomu, že každou konstrukci a každý materiál hodnotí jiná norma a některou i více norem z různých úhlů pohledů, stává se často, že si mezi sebou protiřečí. To dosti stěžuje uplatnění nároku na kompenzaci za nekvalitně provedené dílo, či jeho opravu u realizační firmy. 

Vzhledem k tomu, že většina technických norem není závazných, nejsou v této problematice jednotné ani soudy, u kterých spor v mnoha případech končí. A tak pokud spor dojde k soudu, jsou stejně pravděpodobné zcela různé postupy. První možnost je, že soud bude chtít po realizační firmě vysvětlit a doložit, proč dílo neprovedla podle dané normy. Druhá pak, že bude po investorovi požadovat vysvětlení a doložení, proč je konstrukci nutné provést s danou přesností.

Chyby a nedostatečné specifikace projektové dokumentace

V projektových dokumentacích je geometrická přesnost konstrukcí velmi často „ošetřena“ (pokud tedy vůbec) upozorněním, že stavba bude prováděna dle platných norem. Takovéto opatření je zcela nedostatečné. V případě rovinnosti vnitřních omítek ovšem nestačí ani specifikace normy, ani odkaz na konkrétní tabulku, neboť například požadavky na rovinnost omítek jsou dány v šesti třídách a není specifikováno, pro jaký typ omítky, či prostor se jaká třída uplatňuje.

Z důvodu nejednotnosti norem pak také vznikají kolize, kdy otvor pro stavební výplň je proveden podle normy pro betonové či zděné konstrukce, což ale neodpovídá požadavku na rovinnost otvoru stavební výplně. Se všemi těmito problémy by měl počítat projektant, který by konkrétně u tohoto příkladu měl správně navrhnout otvor větší a nařídit maltové vyrovnání otvoru před osazením výplně.

Kolaps konstrukce kvůli drobné odchylce

Ještě více závažné je nedodržení půdorysné polohy svislých nosných konstrukcí v nad sebou jdoucích podlažích. Zde je totiž počítáno s tím, že konstrukce jsou umístěny centricky a tedy zatěžují jen samy sebe. Pokud jsou ovšem svislé nosné konstrukce vůči sobě vychýlené, vzniká excentricita, na kterou nejsou tyto konstrukce dimenzovány. Případně u významného uhnutí může být tlak přenášen do vodorovné nosné konstrukce, která je dimenzována pouze na provozní zatížení a zatížení konstrukce podlahy.

Pozor na minimální rozměry

Při projektování staveb je rovněž velmi riskantní navrhovat prostory o minimálních rozměrech (výška u obytných místností, nebo vodorovné rozměry prostor pro osoby se sníženou schopností pohybu apod.). Takovéto počínání totiž nenechává žádný prostor pro různé normami tolerované odchylky (rovinnost, poloha svislé konstrukce, atd.).

Při návrhu světlé výšky stropu bytového domu 2 600 mm (minimální výška), je nutno počítat minimálně s následujícími výkyvy rozměrů:

  • odchylka hrubé ŽB konstrukce: +/- 44 mm

  • odchylka betonové mazaniny tl. 50 mm: rovinnost +/- 4,5 mm + tloušťka -0%/+20% = -4,5/+15,5 mm

U skladby stropu s ŽB nosnou konstrukcí, kročejovou izolací a betonovou mazaninou tl. 50 mm se může skladba při dodržení veškerých normových požadavků zvýšit bezmála až o 6 cm. Spolu s dotvarováním (průhybem) stropní konstrukce pak může dojít k významnému snížení světlé výšky místnosti, vedoucí k znemožnění užívání prostoru, za které je zodpovědný právě projektant.

Co se kontroluje

Dle výše uvedeného je zřejmé, že geometrická přesnost nejsou jen estetické záležitosti ve formě křivé stěny, či šikmého ostění. Nedodržení svislosti stěny u výtahové šachty může způsobit nemožnost instalace výtahu. V případě monolitické výtahové šachty v šestiposchoďovém domě vzniká závažný problém, který lze řešit jen technologicky velmi náročně a nákladně.

Při hodnocení geometrické přesnosti je velice důležité používat správnou terminologii:

Mezní odchylka je parametr, který může nabývat kladných i záporných hodnot (bývá většinou uváděn se znaménkem „±“, např. ±10 mm nebo +3 mm / -1 mm). O tuto hodnotu může být zmenšen, resp. zvětšen základní rozměr. Mezní odchylkou se vyjadřují především odchylky délkových rozměrů, půdorysné polohy, umístění otvorů apod.

Tolerance je absolutní hodnota rozdílu mezních odchylek (např. mezní odchylka ±5 mm může v absolutní hodnotě nabývat tolerance až 10 mm). Hodnota uvedená v normě (ČSN) bez znaménka „±“ (tolerance v absolutní hodnotě) může nabývat kladných a záporných hodnot pouze pokud se vydělí dvěma (např. tolerance 9 mm nemůže nabývat hodnot ±9 mm, ale může nabývat hodnot ±4,5 mm, případně +0/-9 mm).

Hodnocené aspekty geometrické přesnosti stavebních konstrukcí jsou:

  1. Půdorysná poloha konstrukcí

  2. Excentricita (souosost) nosných konstrukcí

  3. Vzdálenost protilehlých konstrukcí

  4. Rozměry stavebních otvorů

  5. Svislost stěn a sloupů

  6. Průhyb vodorovných konstrukcí

  7. Celková rovinnost (vodorovnost) povrchu

  8. Místní rovinnost

  9. Pravoúhlost svislých konstrukcí a stavebních otvorů

  10. Přímost hran

  11. Půdorysná poloha konstrukcí

  12. Svislost (svislá rovinnost) fasády a výtahových šachet

Atelier DEK nabízí měření veškerých uvedených aspektů za použití nejmodernějších technologií a přístrojů. Součástí měření je vyhodnocení odchylek a posouzení dle konkrétních právních předpisů.

Hodnocené aspekty pod drobnohledem

Poptat službu uvedenou v tomto článku

1. Půdorysná poloha konstrukcí a excentricita

Negativní vlivy:

  • statické poruchy vlivem přitížení nenosných konstrukcí či stropní desky

  • statické poruchy vyvolané vstupem excentrického zatížení a tedy i momentu do svislé konstrukce o podlaží níže

  • vychýlení stavby z pozemkové parcely (při realizaci na hranici pozemku), nedodržení odstupových vzdáleností stavby

  • zmenšení vnitřního prostoru pod povolenou hranici (např. prostory pro ZTP)

Kdo a čím měří:

  • zejména geodet totální stanicí

  • polohu lze zaměřit i dálkovým měřidlem od pevného daného bodu či ověřené konstrukce

Poloha se měří v kontrolních bodech, které jsou umístěny 100 mm nad úrovní hrubé podlahy ve svislém směru. Ve vodorovném směru je to pak buď v osách sloupů, či 100 mm od svislých hran u stěn.

2. Excentricita (souosost) nosných konstrukcí

Negativní vlivy:

  • statické poruchy vlivem přitížení nenosných konstrukcí, či stropní desky

  • statické poruchy vyvolané vstupem excentrického zatížení a tedy i momentu do svislé konstrukce o podlaží níže

Kdo a čím měří:

  • zejména geodet totální stanicí

  • polohu lze zaměřit i dálkovým měřidlem od pevného daného bodu či ověřené konstrukce

Kontrolní body pro měření excentricity (souososti) jsou na konstrukci výše ležícího podlaží 100 mm nad úrovní hrubé podlahy, u konstrukce níže ležícího podlaží 100 mm pod stropem ve svislém směru. Ve vodorovném směru jsou kontrolní body u sloupů ve dvou na sebe kolmých osách povrchových ploch, u stěn 100 mm od svislých hran. Pokud jsou tato místa měření nepřístupná, kontrolní body se umístí do čelních rovin stěn, popřípadě ještě uvnitř konstrukcí (např. ve čtvrtinách délky stěn apod.).

Obr. 2 – Umístění kontrolních bodů při měření excentricity nosných konstrukcí

3. Vzdálenost protilehlých konstrukcí

Negativní vlivy:

  • nedodržení projektovaných rozměrů místnosti a znemožnění užívání prostoru či znemožnění umístění vybavení (výrobní linky, nábytku), u kterého bylo počítáno s min. rozměrem

  • u vodorovných konstrukcí dále hrozí riziko nemožnosti zkolaudování daného prostoru

Kdo a čím měří:

  • zejména geodet totální stanicí

  • polohu lze zaměřit i laserovým dálkoměrem či svinovacím pásmem (obvykle mistr či stavbyvedoucí) od ověřených konstrukcí

  • inspektor nemovitostí

a) Svislé konstrukce

Vzdálenost svislých protilehlých konstrukcí (délka, šířka) se kontroluje 100 mm nad podlahou a pod stropem, u stěn případně ještě uprostřed výšky a šířky respektive délky místnosti, u sloupů případně ještě uprostřed jejich výšky.

Obr. 3 – Měření vzdálenosti svislých protilehlých konstrukcí

b) Vodorovné konstrukce

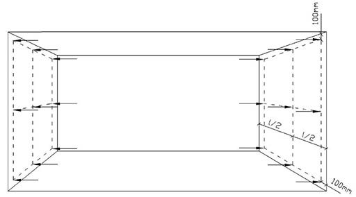
Vzdálenost vodorovných protilehlých konstrukcí (výška) se kontroluje 100 mm od obvodových stěn, případně ještě uprostřed šířky a délky místnosti.

Obr. 4 – Měření vzdálenosti vodorovných protilehlých konstrukcí

4. Rozměry stavebních otvorů

Negativní vlivy:

  • nemožnost montáže plánované výplně či vyšší technologická náročnost montáže (dozdívání, úpravy výplně)

  • snížení průchodnosti otvoru, znesnadnění stěhování nábytku, technických zařízení

  • nemožnost zkolaudování prostoru (např. z důvodu nedodržení rozměrů otvoru pro evakuaci osob)

Kdo a čím měří:

  • mistr či stavbyvedoucí metrem či dálkoměrem

  • inspektor nemovitostí

Rozměry stavebních otvorů se kontrolují ve svislém i vodorovném směru vždy min. 100 mm od hran otvoru, případně uprostřed výšky a šířky otvoru.

Obr.5 – Měření rozměrů stavebního otvoru

5. Svislost stěn a sloupů

Negativní vlivy:

  • statické poruchy vyvolané vstupem excentrického zatížení

Kdo a čím měří:

  • geodet totální stanicí či 3D scannerem 

  • metrem od vztažné přímky vytvořené olovnicí nebo rotačním laserem

  • inspektor nemovitostí

Při kontrole svislosti se volí kontrolní body na konstrukci 100 mm nad úrovní podlahy a 100 mm pod úrovní stropu ve svislém směru. Ve vodorovném směru jsou kontrolní body u sloupů v osách povrchových ploch, u stěn 100 mm od svislých hran. Při měření odchylek svislosti vzhledem ke vztažné přímce se umístí vztažná přímka (např. zavěšená olovnice na provázku) 100 mm od stěny. Odchylka od vztažné přímky se změří v určených bodech. Skutečná odchylka od svislosti se stanoví odečtením vzdálenosti vztažné přímky od stěny (100 mm) od změřených hodnot.

Obr. 6 – Měření svislosti konstrukcí

Obr. 7 – Měření svislosti vzhledem ke vztažené přímce

6. Průhyb vodorovných konstrukcí

Negativní vlivy:

  • známky nedostatečné únosnosti konstrukce

  • znemožnění osazení konstrukcí či technologií

  • zmenšení světlé výšky v prostoru pod stropem a případné znemožnění zkolaudování prostoru pro plánovaný účel

Kdo a čím měří:

  • geodet totální stanicí či nivelačním přístrojem, alt. 3D scannerem

  • mistr či stavbyvedoucí stavebním laserem

Průhyb průvlaků, ztužidel, vazníků, překladů a pod. se kontroluje v místě podélné osy konstrukce uprostřed rozpětí. Průhyb podlah a stropů se kontroluje nejméně uprostřed světlosti podpůrné konstrukce, popř. v průsečících čtvercové sítě odsazené od hran stěn a sloupů o 100 mm. Čtvercová síť o délce strany max. 3 m a min. 0,5 m (podle velikosti kontrolované plochy a požadované přesnosti) se volí rovnoběžně se svislými hranami kontrolované plochy.

Obr. 8 – Měření průhybu průvlaků, překladů apod.

Obr. 9 – Měření průhybu stropů nebo podlah

7. Celková rovinnost (vodorovnost) povrchu

Negativní vlivy:

  • znemožnění využívání prostoru

  • estetické vady

Kdo a čím měří:

  • geodet totální stanicí či nivelačním přístrojem

  • mistr či stavbyvedoucí stavebním laserem

  • olovnicí na provázku či napnutým lankem

  • inspektor nemovitostí

V případě geodetického měření lze celkovou rovinnost vyhodnotit tak, že ze všech změřených odchylek od projektované hodnoty se vypočítá průměrná hodnota, která bude představovat srovnávací rovinu a ta se odečte od všech změřených odchylek, přičemž s požadovanou přípustnou odchylkou se porovnává největší zjištěná odchylka. Celkovou rovnost lze také měřit vůči srovnávací rovině, která se odsadí cca 10 až 15 cm od měřeného povrchu.

Srovnávací rovinu u vodorovných konstrukcí lze vytvořit pomocí rotačního laseru, který vytvoří vodorovnou rovinu. U svislých konstrukcí lze použít rotační laser se svislou rotační rovinou nebo napnutý provázek či lanko, které se na koncích konstrukce odsadí cca o 10 cm. Koncové body, ve kterých se měří odsazení srovnávací roviny, by měly být odsazeny min. 100 mm od svislých hran měřené konstrukce a min. 100 mm od podlahy. Měření probíhá tak, že se změří vzdálenosti mezi povrchem konstrukce a srovnávací rovinou v jednotlivých bodech čtvercové sítě. Od těchto hodnot se odečte původně nastavená vzdálenost srovnávací roviny a zjistí se největší odchylka, která se porovná s požadovanou přípustnou odchylkou.

Obr. 10 – Měření celkové rovinnosti povrchu svislých konstrukcí

Obr. 11 – Měření celkové rovinnosti povrchu (vodorovnosti) vodorovných konstrukcí

8. Místní rovinnost

Negativní vlivy:

  • estetická vada

  • snížení využitelnosti prostoru

Kdo a čím měří:

  • měření probíhá pomocí 2 m dlouhé latě min. s dvěma libelami a podložkami o stejné výšce, dále pomocí měrného klínku či posuvného měřítka

  • geodet pomocí 3D scanneru

  • inspektor nemovitostí

Místní rovinnost povrchu se kontroluje na vztažnou vzdálenost 2 m. Odchylky místní rovinnosti se stanovují pomocí dvoumetrové latě. Jednotlivé klady latě se rovnoměrně rozmístí po kontrolované ploše. Lať musí být kladena min. 100 mm od hran kontrolované plochy a především do míst, kde lze podle vizuálního pozorování předpokládat největší odchylky. Při každém kladu latě se pomocí posuvného měřítka (nebo klínku – záleží na výšce podložek) provede 5 měření rozmístěných po 500 mm a zjistí se maximální a minimální vzdálenost mezi měřeným povrchem (podlaha, stěna, strop) a spodním lícem latě.

Obr. 12 – Měření místní rovinnosti povrchu vodorovných konstrukcí pomocí 2 m latě

U konstrukcí, jejichž přípustné odchylky mohou nabývat absolutních hodnot bez znaménka ± (týká se betonů, SDK a omítek posuzovaných podle ČSN EN 13914-2) se lať přikládá na měřený povrch tak, aby se na obou koncích dotýkala povrchu a měří se největší prohlubeň.

Obr. 13 – Měření místní rovinnosti latí bez podložek

Lať je na obou koncích opřena o povrch. Změří se největší prohlubeň mezi povrchem a spodním lícem latě a zjistí se odchylka (y). Lať je přiložena k povrchu tak, že uprostřed latě je vyboulení. Přitlačením jednoho konce latě k povrchu dojde k výraznému nadzdvižení druhého konce. Odchylka by měla být měřena v prostoru mezi dotyky latě (odchylka y1).

U konstrukcí, jejichž přípustné odchylky mohou nabývat kladných i záporných hodnot, se místní rovinnost měří pomocí 2 m latě na podložkách. Výšku podložek lze zvolit libovolně, např. pokud se kontroluje rovinnost s odchylkou ±2 mm na 2 m lze nastavit podložku na velikost 4 mm. Dodržení odchylek se potom kontroluje pomocí měrného klínku vsunutého mezi lať a povrch nebo u vyšší výšky podložky pomocí posuvného měřidla.

Změří se nejmenší (y1) a největší (y2) rozdíl mezi latí a povrchem. Od změřených hodnot y1 a y2 se odečte výška podložek h a zjistí se největší respektive nejmenší odchylka od rovinnosti. V případě, že lať na podložkách při přitlačení jednoho konce k povrchu druhým koncem na povrch nedosedá, není dodržena přípustná odchylka.

Obr. 14 – Měření místní rovinnosti latí s podložkami

Pro vodorovné konstrukce se na každých 100 m2 kontrolované plochy provede nejméně 5 měření, nejmenší počet kladů latě v jedné místnosti je 5. Pro svislé konstrukce se na každých 25 m2 kontrolované plochy provede nejméně 5 měření, nejmenší počet kladů latě na ucelené kontrolované ploše (např. jedna stěna) je 5.

9. Pravoúhlost svislých konstrukcí a stavebních otvorů

Negativní vlivy:

  • zejména estetická vada (umocněná v případě rovnoběžného spárořezu dlažby na podlaze)

  • nemožnost plnohodnotného využití prostoru (v případě umístění pravoúhlého vybavení)

Kdo a čím měří:

  • geodet totální stanicí

  • inspektor nemovitostí

  • pravoúhlost lze měřit rovněž rotačním laserem s vyrovnáním roviny ve svislém i vodorovném směru a s kolmicí na rovinu rotace

  • měření uhlopříček dálkoměrem

  • provázkem o délce 5 m s vyznačením jednotlivých metrů

Pravoúhlost svislých konstrukcí lze kontrolovat geodeticky zároveň s kontrolou půdorysného umístění. Kontrolní body pro měření pravoúhlosti svislých konstrukcí jsou shodné s kontrolními body půdorysného umístění. Kontrolní body jsou na konstrukci 100 mm nad úrovní hrubé podlahy ve svislém směru. Ve vodorovném směru jsou kontrolní body 100 mm od svislých hran.

Obr. 15 – Měření pravoúhlosti svislých konstrukcí geodeticky

Kontrolu pravoúhlosti pomocí rotačního laseru lze provádět tak, že rovinu rotačního laseru ustavíme rovnoběžně s jednou svislou rovinou. Rotační rovina laseru by měla být umístěna 100 mm od svislé roviny. Kontrolní body pro ustavení rotační roviny rotačního laseru by měly být 100 mm od hran svislé konstrukce a 100 mm nad podlahou.

Odchylky od pravého úhlu, který s první svislou rovinou svírá druhá svislá rovina, lze odečítat na bodovém paprsku laseru, který je kolmý na rotační rovinu laseru. Rotační laser by měl být umístěn v takové pozici, aby kolmý paprsek na rotační rovinu laseru byl vždy odsazen min. 100 mm od druhé svislé roviny, u které se budou odečítat odchylky. Odchylky by se měly odečítat těsně za tělem laseru a min. 100 mm od hran svislé konstrukce. Odchylka od pravého úhlu se vypočte jako rozdíl změřených hodnot.

Obr. 16 – Měření pravoúhlosti svislých konstrukcí pomocí rotačního laseru

Pokud není na stavbě k dispozici geodet ani rotační laser, lze pravoúhlost měřit pomocí napnutého provázku, lanka nebo délkového měřidla a pravoúhlého trojúhelníku. Na provázek nebo lanko délky min. 5 m se vyznačí pro orientaci stejně dlouhé úseky nejlépe po 1 m (pokud je potřeba měřit pravoúhlost konstrukcí o rozpětí menším, lze vyznačit i úseky v menších rozměrech dm, cm apod.). Měření u svislých konstrukcí by mělo být prováděno min. 100 mm nad podlahou u stavebních otvorů uprostřed tloušťky ostění. Na napnutém provázku se odečtou délky ramen a úhlopříčky a spočte se odchylka. Odchylka se zjišťuje na kratším rameni sevřeného úhlu.

Obr. 17 – Měření pravoúhlosti svislých konstrukcí a stavebních otvorů pomocí pravoúhlého trojúhelníku

Další možností, jak určit pravoúhlost svislých konstrukcí a především stavebních otvorů je změření úhlopříček pomocí délkového měřidla (svinovací metr, měřící pásmo, laserový dálkoměr s výklopnou patkou pro přesné nastavení v rohu místnosti apod.). Měření probíhá tak, že se změří úhlopříčky a změřené hodnoty se od sebe odečtou. Měření u svislých konstrukcí by mělo být prováděno min. 100 mm nad podlahou u stavebních otvorů uprostřed tloušťky ostění.

Obr. 18 – Měření pravoúhlosti svislých konstrukcí a stavebních otvorů pomocí měření úhlopříček

10. Pravoúhlost svislých konstrukcí a stavebních otvorů

Negativní vlivy:

  • znemožnění osazení projektované výplně a plánovaného vybavení

  • estetická vada

Kdo a čím měří:

  • měří stavbyvedoucí či inspektor nemovitostí

  • latí s dvěma libelami

  • napnutým provázkem nebo ocelovým lankem

  • měrným klínkem či posuvným měřítkem

  • dálkovým měřidlem

Přímost hran by se měla kontrolovat ve dvou na sebe kolmých směrech. Pro délku hrany do 3 m se volí 5 kontrolních míst. Kontrolní místa by měla být na hraně rovnoměrně rozmístěna, krajní místa měření by měla být min. 100 mm od konců hrany. Kontrolu lze provést pomocí latě, jejíž délka je úměrná délce hrany (pro hranu délky max. 3 m stačí použít lať délky 2 m nebo lze volit lať délky 3 m, u kratší hrany než 2 m lze použít kratší lať než 2 m).

Obr. 19 – Měření pravoúhlosti svislých konstrukcí geodeticky

Pro délku hrany delší jak 3 m se pro každý další 1 m délky přidává jedno kontrolní místo. Kontrolní místa by měla být na hraně rovnoměrně rozmístěna, krajní místa měření by měla být min. 100 mm od konců hrany. Kontrolu celé hrany lze provádět pomocí napnutého provázku nebo ocelového lanka nebo pomocí latě úměrně dlouhé délce hrany.

Obr. 20 – Měření přímosti hran délky nad 3 metry

U hrany delší jak 3 m lze také provádět kontrolu přímosti pomocí 2 m latě. Jedná se o kontrolu přímosti na vztažnou délku 2 m (tzv. místní přímost). Při každém kladu latě se provede 5 měření rozmístěných po 500 mm.

Obr. 21 – Měření přímosti hran na vztažnou délku 2 m (místní přímost)

11. Půdorysná poloha konstrukcí

Negativní vlivy:

  • především estetická vada

Kdo a čím měří:

  • inspektor nemovitostí měřidlem s rovnou hranou a měrný klínek či posuvné měřítko

Měření výšky hran ve spáře se provádí pomocí dostatečně dlouhého měřidla s rovnou hranou. Měřidlo se přiloží hranou kolmo na vyšší roh spáry, tak aby bylo v rovině s povrchem (podlahy, obkladového prvku apod.). Výškový rozdíl mezi hranami se změří měrným klínkem.

Obr. 22 – Měření výšek hran ve spáře

12. Svislost (svislá rovinnost) fasády a výtahových šachet

Negativní vlivy:

  • především estetická vada

Kdo a čím měří:

  • geodet pomocí totální stanice

  • stavebním laserem se svislou a vodorovnou rovinou

  • olovnicí na provázku, napnutým provázkem nebo lankem

Svislost a celková rovinnost fasády se kontroluje v každém patře. Kontrolní body musí být umístěny min. 100 mm od horního líce stropní desky a 100 mm od rohů a uprostřed rozpětí fasády.

Obr. 23 – Měření celkové rovinnosti a svislosti výtahových šachet a fasády

Poptat službu uvedenou v tomto článku

PODKLADY

[1] ČSN 73 3450 Obklady keramické a skleněné
[2] ČSN 73 3451:2005 – Obecná pravidla pro navrhování a provádění keramických obkladů
[3] ČSN 74 4505:2012 Podlahy – Společná ustanovení
[4] ČSN 73 4505:2008 Podlahy – Společná ustanovení
[5] ČSN EN 13914-1 Navrhování, příprava a provádění vnějších a vnitřních omítek – Část 1: Vnější omítky
[6] ČSN EN 13914-2 Navrhování, příprava a provádění vnějších a vnitřních omítek – Část 2: Příprava návrhu a základní postupy pro vnitřní omítky
[7] ČSN 73 0212-3:1997 Geometrická přesnost ve výstavbě – Kontrola přesnosti. Část 3: Pozemní stavební objekty
[8] ČSN 73 0212-5:1997 Geometrická přesnost ve výstavbě – Kontrola přesnosti. Část 5: Kontrola přesnosti stavebních dílců
[9] ČSN EN 13670:2010 Provádění betonových konstrukcí
[10] ČSN EN 1996-2:2007 Eurokód 6: Navrhování zděných konstrukcí – Část 2: Volba materiálů, konstruování a provádění zdiva
[12] ČSN 73 0202:1995 Geometrická přesnost ve výstavbě – Základní ustanovení
[11] ČSN 73 0205:1995 Geometrická přesnost ve výstavbě – Navrhování geometrické přesnosti

Partneři programu