Logo Přihlásit | Registrovat

Přihlášení


Registrace do programu DEKPARTNER

Přihlašovací údaje
Zaměření*
Kontaktní údaje

Zapomenuté heslo


Vzdělávací centrum

Havárie konstrukčních detailů se zabudovaným dřevem na jednoplášťových střechách s povlakovými hydroizolacemi

Konstrukční desky z dřevní hmoty jsou snadno dostupným, velmi dobře zpracovatelným materiálem s přijatelnými mechanickými vlastnostmi. Proto jsou hojně používané pro vytváření nosných vrstev střech i pro realizaci jejich detailů. Stále však je třeba si připomínat, že dřevo, jako přírodní materiál, může být náchylné na poškození vlhkostí nebo biologickými faktory na vlhkost vázanými.

Článek vyšel také ve SBORNÍKU SEMINÁŘE 2019 (viz pdf).

V devadesátých letech minulého století se na českém trhu začal objevovat nový materiál pod označením OSB (Oriented Strand Board - desky z orientovaných plochých třísek). Jedná se o desky z dřeva pojeného pryskyřicemi. Velmi rychle jsme přivykli pohodlí, které OSB desky snadnou opracovatelností, možností volby téměř libovolných formátů i únosností pro vruty nabízejí při tvorbě konstrukčních detailů. V několika případech jsme se ale setkali s destrukcí desek použitých v detailu atiky. Díky sdílení poznatků mezi našimi konzultačními techniky pohybujícími se denně na stavbách a techniky, kteří se zabývají vývojem konstrukcí, jsme identifikovali příčinu poruch a na základě získaných poznatků upravili i některé naše typové konstrukční detaily.

Popis zjištěné poruchy

V roce 2017 jsme měli hledat příčiny havárie větrem utržené části koruny atiky ploché střechy rodinného domu, ke které došlo už po třech letech od zahájení provozu. Majitel a uživatel objektu nezaznamenal před havárií v interiéru žádné viditelné poruchy. OSB deska použitá pro vytvoření rovného, tuhého a únosného podkladu koruny atiky byla ztrouchnivělá, zcela nesoudržná ve své hmotě a její stav byl označen za hlavní příčinu havárie detailu. Všichni zúčastnění se ptali: „Jak je možné, že OSB deska je po třech letech od zabudování v tak katastrofálním stavu?“ Řešení problému se ujali kolegové ze znaleckého ústavu DEKPROJEKT s.r.o.

foto01
Foto 1 - Utržená část koruny atiky

Objekt je nepodsklepený s jedním nadzemním podlažím, je zastřešený plochou střechou v několika výškových úrovních. Střecha je jednoplášťová, nevětraná, s klasickým pořadím vrstev.
Skladba střechy zjištěná sondami ze strany exteriéru je stejně jako původní konstrukce koruny atiky patrná z obrázku 1.

obr01
Obrázek 1 - Realizovaná konstrukce atiky

Řešení skladby střechy ani detailu atiky se nevymyká běžně realizované praxi.
Zrealizovaná skladba střechy:

  • stabilizační vrstva z praného kameniva,
  • separační netkaná textilie,
  • hydroizolace z PVC-P fólie,
  • separační netkaná textilie,
  • tepelná izolace z pěnového polystyrenu (EPS) kladená ve více vrstvách,
  • parotěsnicí vrstva z asfaltových pásů,
  • nosná železobetonová konstrukce z filigránových stropních panelů.

Atikové zdivo ze svisle děrovaných keramických bloků bylo provedeno na plnoplošné maltové lože na stropní konstrukci. Na vnitřním svislém povrchu atiky bylo provedeno zateplení deskami z EPS tloušťky 80 mm. Z vnější strany byla atika spolu s celou fasádou opatřena vnějším kontaktním zateplovacím systémem (ETICS) s izolantem z EPS o tloušťce 100 mm. Na koruně atikového zdiva byla po celém obvodu střechy provedena betonová mazanina o minimální tloušťce 50 mm. Shora byly na beton položeny desky z EPS o tloušťce 80 mm, na které byla přímo kladena deska OSB typ 3, mechanicky kotvená šrouby do betonu skrz tepelnou izolaci. Nakonec byla přes separační vrstvu z netkané textilie provedena hydroizolace atiky z PVC-P fólie DEKPLAN 76.
Sondami provedenými do konstrukcí střechy při stavebně technickém průzkumu bylo zjištěno, že stav OSB desek je po celé délce atik prakticky identický. Desky se rozpadaly, ale v době průzkumu byly suché.

Je zřejmé, že k havárii koruny atiky došlo vlivem působení větru. Z fotografií 2 a 3 je patrné, že nedošlo k vytržení šroubů z železobetonového podkladu, ale k protažení hlav šroubů skrz degradovanou hmotu desek.

foto02
Foto 2 - Havárie detailu koruny atiky
foto03
Foto 3 Kotvicí prvky konstrukce koruny atiky
Popis zjištěné poruchy

Při řešení znaleckého úkolu jsme posuzovali tyto možné příčiny poruchy:

  • Příčina 1 - OSB desky byly již zabudované ve vlhkém stavu.
  • Příčina 2 - Do konstrukce atiky byla vlhkost transportována netěsnými obvodovými konstrukcemi.
  • Příčina 3 - Vlhkost byla během stavby zabudována do skladby střechy a postupně transportována do prostoru atiky.
  • Příčina 4 - Vlhkost pohází ze zatékání do střechy.
Příčina 1 - OSB desky byly zabudovány ve vlhkém stavu

Dle zhotovitele střechy byly desky zabudovány do konstrukce v suchém stavu. Důvěřujeme jeho tvrzení, že nepoužil vodou nabobtnalé OSB desky.

Příčina 2 - Do konstrukce atiky byla vlhkost transportována netěsnými obvodovými konstrukcemi.

Analýza možných vad a poruch konstrukcí způsobených prouděním vzduchu v obvodových konstrukcích byla podrobně provedena v časopisu DEKTIME 03/2014 v článku Vlhkostní poruchy způsobené nevzduchotěsnou obálkou staveb. V této analýze se poukazuje jak na riziko transportu vlhkého vzduchu nevhodně provedeným neomítnutým zdivem z dutinových cihelných bloků, tak na možnost transportu vlhkého vzduchu mezi novým zdivem a nevhodně provedeným zateplením z ETICS, jak je schématicky znázorněno na obrázku 2.

Obrázek 2 - Schéma možného transportu vlhkého vzduchu z interiéru zdivem z dutinových cihelných bloků, zateplených ETICS

Touto cestou může pronikat poměrně velké množství vlhkosti až k oplechování atiky, kde může zkondenzovat a zatěžovat konstrukční prvky detailu kapalnou vodou, jak je zobrazeno na fotografii 4, získané na jiné stavbě.

foto04
Foto 4 - Výskyt zkondenzované vody pod oplechováním koruny atiky v místě svislé spáry mezi zdivem a ETICS (foto z jiné stavby)

Aby bylo možné příčinu 2 potvrdit nebo vyloučit, byly provedeny sondy do atikového zdiva ze strany střechy.

foto05
Foto 5 - Sondy do atiky
foto06
Foto 6 - Sonda u paty atikového zdiva
foto07
Foto 7 - Pohled skrz atikové zdivo na vnitřní povrch ETICS, zdivo suché, plnoplošně podmaltované

V provedených sondách nebyly mezi ETICS a keramickým zdivem zjištěny známky vlhkosti. Dle sond a dostupných fotografií z průběhu realizace došlo ke standardnímu lepení tepelného izolantu ETICS celoobvodovým rámečkem, tzn. lepicí hmota vzduchovou vrstvu mezi izolantem a keramickým zdivem přerušuje. Rámečky nebrání zcela šíření vlhkosti prostřednictvím styčných spár zdiva, protože zdivo na straně k ETICS není omítnuté. Keramická věncovka železobetonového stropu ale byla pod první řadou atikového zdiva zalita betonem, nebo pokryta maltovým ložem. K degradaci OSB desek došlo ve větší míře především při vnitřním okraji atik.

Na základě těchto skutečností bylo konstatováno, že pokud vůbec mohlo docházet k šíření vlhkosti nevzduchotěsnými obvodovými stěnami, nebyla tato dotace významná, a tudíž ani hlavní příčinou vzniklé poruchy.

Příčina 3 nebo 4 - Vlhkost byla do skladby střechy během stavby zabudována nebo do střechy zatekla a postupně byla transportována do prostoru atiky (viz obrázek 3)

Protože OSB desky byly při stavebně technickém průzkumu suché a voda ve skladbě nebyla, bylo konstatováno, že proces degradace dřevní hmoty byl již ukončen a s velkou pravděpodobností k němu došlo jednorázově v období 1 – 2 roky po dokončení stavby. Dlouhodobé, stále trvající, zatékání bylo tedy jako rozhodující zdroj vody vyloučeno.
Z fotodokumentace pořízené při realizaci stavby bylo zjištěno, že se nacházelo větší množství vody na dokončené parotěsnicí vrstvě již v průběhu pokládky povlakové krytiny. Nejpravděpodobnější příčinou poruchy tedy byla destrukce dřeva namáhaného vodou zabudovanou do střechy v průběhu realizace.

obr03
Obrázek 3 - Schéma postupného transportu vlhkosti z povrchu parotěsnicí vrstvy ke koruně atiky

 

Experimentální stanovení odolnosti deskových materiálů a kotevních prvků

Série podobných poruch, se kterými jsme se v poslední době setkali jak prostřednictvím konzultačních techniků ATELIERU DEK působících v jednotlivých regionech, tak v rámci činnosti znaleckého ústavu, byla důvodem k zahájení výzkumného úkolu řešeného na Fakultě stavební Technické univerzity v Ostravě na katedře stavebních hmot a diagnostiky staveb. Řešitelem úkolu je Ing. Ondřej Nečas. Při řešení úkolu byly zahájeny rozsáhlé experimentální testy kvality a parametrů deskových materiálů vystavených vysoké vlhkosti, jak je zobrazeno na fotografiích 8 a 9. Součástí testů je i zjišťování únosnosti vrutů ve zkoušených deskových materiálech uložených v různých vlhkostních podmínkách, viz fotografie 10 a 11.
I na základě těchto laboratorních zkoušek jsme z možných příčin výše popsané poruchy vyloučili odchylku v kvalitě zabudovaných OSB desek.
O podrobnějších výsledcích výzkumu budeme informovat v některém z příštích vydání DEKTIME.

foto08
Foto 8 - Příprava vzorku na test výtažné síly vrutů z OSB desky a podkladu
foto09
Foto 9 - Uložení segmentu atiky v klimakomoře
foto10
Foto 10 - Stanovení výtažné síly kotevních prvků v různých materiálech, vystavených různé vlhkosti
foto11
Foto 11 – Stanovení korozní odolnosti kotevních prvků
Rozsah nápravných opatření

Vzhledem k havarijnímu stavu atik bylo nutné předepsat opravu v celé jejich délce 116 m. Posudkem vyčíslená částka na investorem zvolenou variantu opravy přesahovala 200 tisíc Kč včetně DPH.
Koncepční návrh nápravných opatření byl zpracován ve dvou variantách. V té dražší jsme navrhovali upravit parozábranu tak, aby bránila případnému dalšímu šíření vody ze skladby střechy do konstrukce atiky. Investor nakonec zvolil pouhé obnovení původního stavu. Vycházel ze zjištění, že ve skladbě se při průzkumu již žádná voda nenalezla. Místo OSB desek však byly použity desky z překližky, tedy materiál odolnější vůči působení vlhkosti.

Poučení a závěr

Posuzované řešení atiky se nijak nevymyká z řešení běžně uplatňovaných v současné době na mnoha stavbách. Uvědomili jsme si ale, že dlouhodobá funkčnost detailu je velmi závislá na technologické kázni při realizaci. Do střechy nesmí zatéct v průběhu realizace voda ani do ní nesmí být zabudovány vlhké materiály. Také je třeba vyloučit pronikání nepředpokládané vlhkosti do skladby střechy například difúzí přes špatně provedenou parozábranu nebo prouděním nevzduchotěsně provedenými obvodovými stěnami (z jiných staveb máme zkušenosti se šířením vlhkosti dutinovým zdivem neuzavřeným v úrovni věnce nebo šířením vlhkosti spárou mezi kontaktním zateplením a zdivem). Rizikem pro dřevěné materiály v detailu je i zatečení vody do střechy v případě defektu hydroizolace nebo jejího napojení na související konstrukce.
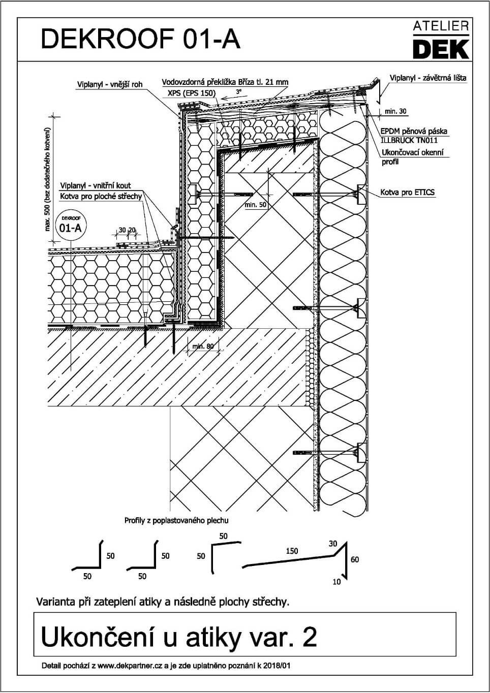
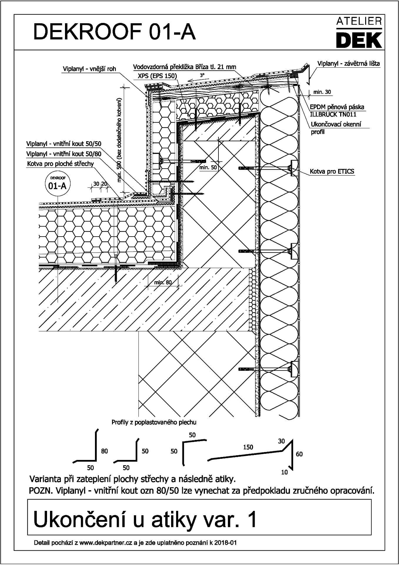
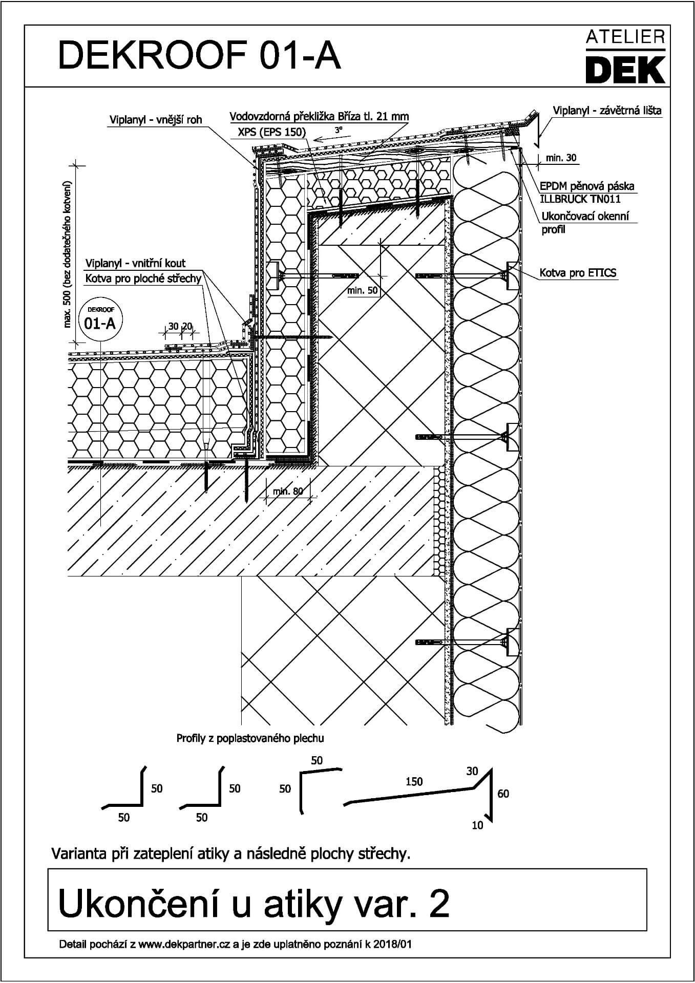
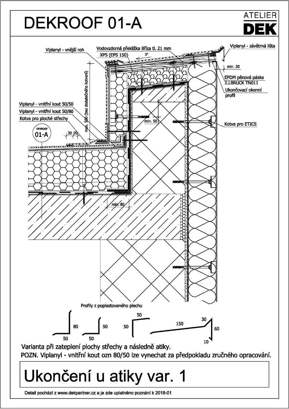
Provedli jsme revizi konstrukčních detailů našich systémových typizovaných skladeb střech. Na základě ověřování parametrů různých deskových materiálů vystavených dlouhodobému působení vody jsme v našich řešeních nahradili OSB desky fóliovanou hladkou překližkou z břízových dýh, která vytváří předpoklad vyšší odolnosti proti degradaci vlhnutím. Především jsme ale provedli takovou úpravu detailů, aby i při případných pochybeních v realizaci střech nebo defektech hydroizolace byla rizika nadměrného vlhnutí dřevěných materiálů zabudovaných v konstrukčních detailech co nejmenší. Za cenu mírného zvýšení spotřeby materiálu při realizaci parotěsnicí vrstvy jsme upravili její polohu a ukončení v detailech tak, aby případná vlhkost ze skladby střechy v běžné ploše nemohla pronikat do detailů a k dřevěným materiálům v nich zabudovaným. Na obrázcích 4 a 5 jsou příklady řešení atiky pro jednu z typových skladeb ve dvou variantách postupu realizace střechy a různého provedení hydroizolace střechy. V obou případech je parozábrana provedena na celé vnitřní svislé ploše a celé koruně nosné části atiky. V prvním případě se předpokládá, že jako první bude realizována skladba vrstev v ploše střechy s těsným napojením hydroizolace na parozábranu na atice a teprve následně se provede zateplení atiky. V druhém případě se předpokládá nejprve realizace zateplení atik a jejich hydroizolace napojené na parozábranu v ploše (separaci PVC fólie od asfaltu zajišťuje podtmelený profil z poplastovaného plechu) a teprve následná realizace tepelné izolace a hydroizolace v ploše. Vhodnou variantu je třeba vybrat podle zvoleného postupu výstavby na základě zvyklostí konkrétního zhotovitele střechy.

Aktuální konstrukční detaily k typizovaným skladbám jsou k dispozici projektantům a architektům na webové stránce programu technické podpory DEKPARTNER www.dekpartner.cz.

obr05
Obrázek 4 - Řešení detailu atiky pro střešní skladbu DEKROOF 01-A, varianta 1
obr05
Obrázek 5 - Řešení detailu atiky pro střešní skladbu DEKROOF 01-A, varianta 2

Autoři:
Jiří Všohájek
konzultační technik ATELIERU DEK, působí na pobočkách STAVEBNINY DEK České Budějovice, Prachatice, Trhové Sviny
jiri.vsohajek@dek-cz.com, +420 737 281 250

autor01
autor01

Ing. Ondřej Nečas
projektant, DEKPROJEKT s.r.o.
o.necas@dek-cz.com, +420 733 168 275

autor02
autor02

Ing. Antonín Žák, Ph.D.
vedoucí výzkumu a vývoje
antonin.zak@dek-cz.com, +420 731 421 977

autor03
autor03
Partneři programu