Logo Přihlásit | Registrovat

Přihlášení


Registrace do programu DEKPARTNER

Přihlašovací údaje
Zaměření*
Kontaktní údaje

Zapomenuté heslo


Vzdělávací centrum

Odborné a znalecké posudky staveb

Nebezpečí jménem radon

Zveřejněno: 25. 3. 2022
Stanislav Losenický
Stavebniny DEK a.s., konzultační technik pro pobočky Ústí nad Labem, Děčín, Lovosice, Teplice
Všechny články autora

Autor článku se zaměřil na výskyt radonu na našem území a zdravotní rizika spojená s pronikáním radonu do budov a pokusil se přiblížit některé body revize normy ČSN 73 0601 z roku 2019.

Účelem tohoto článku je zvýšit povědomí o problematice radonu ve stavbách mezi odbornou veřejností. Především se chci zaměřit na informace o výskytu radonu na našem území, zdravotních rizicích spojených s pronikáním radonu do budov a přiblížit některé body revize normy ČSN 73 0601 z roku 2019, protože se často při jednáních s projektanty, realizačními firmami i investory setkávám s nižším povědomím o této revizi, a tudíž se špatným výkladem aktuálních pravidel pro navrhování protiradonových opatření.

Revize normy upravila názvosloví, zavedla nové pojmy jako např. radonový odpor, protiradonová izolace nebo radonový index stavby a zařadila do normy kapitolu o ochraně pobytového prostoru. Dimenzování protiradonové izolace se nyní provádí podle jejího odporu. Přepracovány také byly kapitoly o stavbách s nuceným větráním pobytového prostoru a o kontrole a účinnosti protiradonových opatření.

O radonu

Problematika spojená s radonem sahá do poloviny minulého století. Chemický prvek radon je inertní přírodní radioaktivní plyn, který je bezbarvý, bez chuti a zápachu. Vzniká radioaktivním rozpadem uranu. Byl objeven ještě zhruba o padesát let dříve, ale teprve v roce 1952 William F. Bale a František Běhounek prokázali jako hlavní příčinu rakoviny plic horníků působení krátkodobých produktů přeměny radonu. Tyto prvky, těžké kovy polonium, bismut nebo olovo, ulpívají na prachových částicích a aerosolech, se kterými pronikají vdechnutím do plic, usazují se na povrchu dýchacích cest a ozařují zde kmenové buňky. Od té doby se o radon začali vědci zajímat z hlediska poškozování zdraví.

Na základě získaných poznatků byl vytyčen cíl na snížení výskytu rakoviny plic ve spojitosti s výskytem radonu, tehdy zejména u horníků. V průběhu druhé poloviny dvacátého století byly postupně aktivovány národní antiradonové programy. V Československu byl takový program spuštěn v roce 1978 v Jáchymově. Zde byly světově unikátní podmínky k měření radonu způsobené vyšším radonovým rizikem a uranem kontaminovanými zbytky po těžbě stříbrné rudy.

V polovině osmdesátých let byly vytipovány oblasti s nízkým, středním a vysokým radonovým rizikem a začala příprava radonových map společně se systematickým proměřováním území republiky.

Legislativa problematiky radonu se začala řešit až po Sametové revoluci, kdy v roce 1990 byla nejprve upravena vyhláška Ministra zdravotnictví, na kterou navázalo usnesení vlády k radonové problematice. Teprve až v roce 1997 byla problematika radonu upravena tzv. atomovým zákonem a vyhláškou Státního úřadu pro jadernou bezpečnost, které ukládaly povinnost měřit radonový index pozemku při stavbě nového objektu.

Významným rokem v novodobé historii spojené s problematikou radonu je rok 2009, kdy Mezinárodní zdravotnická organizace vydala prohlášení, ve kterém považuje radon nahromaděný v bytech za druhou nejvýznamnější příčinu rakoviny plic, hned po kouření.

Výskyt

Radon vzniká v horninovém prostředí radioaktivní přeměnou izotopu uranu U-238. Velmi se liší jeho koncentrace podle typu hornin. Obecně platí, že v sedimentárních horninách, tedy horninách vzniklých přemístěním, usazením a následným zpevněním zvětralých úlomků, vysrážením z roztoků nebo usazením vlivem biologického činitele, se setkáme s nižšími koncentracemi uranu. V horninách metamorfovaných, které vznikají ze všech druhů hornin v důsledku působení vysokých teplot, tlaků a chemického prostředí, kterému jsou horniny v zemské kůře vystaveny, jsou koncentrace násobně vyšší.

Autor: Pajs – Vlastní dílo, Volné dílo, https://commons.wikimedia.org/w/index.php?curid=2728746

Nejvyšší koncentrace radonu jsou obvykle v magmatických vyvřelých horninách, mezi které se řadí např. granit (žula), diorit a gabro. Radon se v horninovém prostředí šíří difuzí a v zeminách a půdách konvekcí. Konvekce je ovlivněna plynopropustností zemin, což je parametr, který charakterizuje možnost šíření radonu a jiných plynů. Geologické podloží České republiky je tvořeno cca z 60% magmatickými a metamorfovanými horninami, z čehož vyplývá častější výskyt vyšších koncentrací radonu.

Kromě uranu se na ozáření z přírodních zdrojů podílí také draslík a thorium.

Informace o výskytu radonu v České republice jsou dostupné na stránkách České geologické služby. Na obr. 1 je náhled na mapovou aplikaci umístěnou na stránkách ČGS.

Zdroj: Radonové riziko, Geologická mapa 1 : 50 000. In: Komplexní radonová informace [online]. Praha: Česká geologická služba [cit. 2022-03-08]. Dostupné z: https://mapy.geology.cz/radon/

Radon ze stavebních materiálů

V osmdesátých letech minulého století byly objeveny vyšší koncentrace radia v pórobetonu. Hodnoty byly řádově vyšší, než připouštěla rozpracovaná norma. Zdrojem těchto vyšších koncentrací byla surovina pro výrobu pórobetonu, kterou byl popílek z elektrárny, která spalovala uhlí bohatě kontaminované uranem. Na základě těchto zjištění se výzkum protiradonových opatření ve stavebnictví zaměřil hlavně na stavební materiály a bohužel nikoliv na hlavní zdroj, kterým je šíření radonu z podloží.V současnosti nařizuje atomový zákon a vyhláška č.307/2002 Sb. ve znění vyhlášky č. 499/2005 Sb. výrobcům a dovozcům stavebních materiálů povinnost zajišťovat systematické měření a hodnocení hmotnostní aktivity radia ve vyjmenovaných stavebních materiálech.

Radon z podloží

Radon se z podloží do objektů dostává zejména netěsnostmi v obvodových konstrukcích a podlahách, které jsou v kontaktu s podložím. Jedná se zejména o prostupy inženýrských sítí, praskliny v betonových konstrukcích či netěsné šachty. Největší roli v nasávání radonu z podloží hraje tzv. komínový efekt. Nasávání vzrůstá při zvětšeném rozdílu teplot mezi interiérem a exteriérem, čímž roste podtlak v budově. Z těchto důvodů lze měřit nárůst radonové intenzity nejlépe v noci a ranních hodinách, stejně jako vyšší přísun radonu v zimním období.

Legislativa a ochrana staveb proti radonu z podloží

Atomový zákon č. 263/2016 Sb. v paragrafu 98 ukládá, že každý, kdo navrhuje umístění nové stavby nebo přístavby s obytnými nebo pobytovými místnostmi, je povinen zajistit stanovení radonového indexu pozemku.  U stávajících staveb musí být zajištěno měření úrovně objemové aktivity radonu ve stavbě, pokud v nich mají být nově při jejich změně nebo změně užívání zřízeny pobytové místnosti. V paragrafu 98 je také uvedeno, že stanovení radonového indexu pozemku se nemusí provádět, bude-li stavba umístěna v terénu tak, že všechny její obvodové konstrukce budou od podloží odděleny vzduchovou vrstvou, kterou může volně proudit vzduch, nebo pokud je projektováno preventivní protiradonové opatření založené na odvětrání radonu z podloží mimo objekt. Pro zodpovědný návrh komplexní protiradonové ochrany se ale bez měření neobejdeme.

Prováděcí právní předpis, kterým je vyhláška č. 422/2016 Sb., m.j. stanoví kritéria pro přípravu a hodnocení plánovaných opatření, která snižují míru ozáření z přírodního zdroje záření ve stavbě a hodnotu ročního průměru objemové aktivity radonu ve vzduchu, při jejímž překročení je vlastník budovy s obytnou nebo pobytovou místností povinen provést opatření, která snižují míru ozáření. Vyhláška obsahuje hodnoty OAR, podle kterých se radonový index pozemku zatřídí jako nízký, střední nebo vysoký.

Referenční úroveň pro přírodní ozáření uvnitř budovy s obytnou nebo pobytovou místností je 300 Bq/m3 pro objemovou aktivitu radonu ve vnitřním ovzduší obytné nebo pobytové místnosti (vztahuje se na průměrnou hodnotu při výměně vzduchu obvyklé při užívání) nebo 1 µSv/h pro maximální příkon prostorového dávkového ekvivalentu v obytné nebo pobytové místnosti ve výšce 1 m nad podlahou a vzdálenosti 0,5 m od stěny.  Při překročení této referenční úrovně musí vlastník budovy posoudit účelnost opatření spočívajících zejména v úpravě způsobu užívání budovy, včetně úpravy ventilace, nebo provedení stavebních nebo technologických ozdravných opatření.

Norma ČSN 73 0601 uvádí doporučený optimalizovaný postup navrhování a provádění ochrany staveb proti radonu z podloží, zajišťující, že ve stavbách nedojde k překročení referenční úrovně pro objemovou aktivitu radonu (OAR) uvedené ve vyhlášce 422/2016 Sb.

Návrh protiradonových opatření dle ČSN 73 0601 vychází z návrhových hodnot pro OAR, návrhových hodnot pro příkon prostorového dávkového ekvivalentu a návrhových hodnot pro intenzitu větrání. Návrhová hodnota OAR musí být menší než referenční úroveň. Norma doporučuje u novostaveb volit návrhovou hodnotu v intervalu 100 – 200 Bq/m3 a u stávajících staveb v rozmezí 150 – 250 Bq/m3. U nových staveb jsou dalšími nutnými podklady pro návrh protiradonových opatření radonový index stavby a údaje o stavbě (velikost plochy v kontaktu s podložím, intenzita větrání, dispoziční řešení, umístění pobytových místností apod.). Stanovení radonového indexu stavby vychází z návrhové hodnoty OAR v půdním vzduchu a návrhové plynopropustnosti zemin. Pro stanovení návrhových hodnot OAR v půdním vzduchu norma využívá hodnoty OAR naměřené při radonovém průzkumu pro stanovení radonového indexu pozemku dle zákona 263/2016 Sb. Na základě údajů z protokolu o stanovení radonového indexu pozemku se také stanoví návrhová plynopropustnost zemin.

Zásady pro návrh ochrany stavby před pronikáním radonu jsou v normě uspořádány podle míry větrání, podle druhu stavby a podle toho, zda jsou ve stavbě pobytové prostory.

Například u nových staveb s pobytovými prostory v kontaktních podlažích s intenzitou větrání nepřevyšující 0,6 h-1 se ochrana proti radonu z podloží řeší provedením celistvé protiradonové izolace s plynotěsně provedenými spoji a prostupy. Protiradonová izolace se kombinuje s dalším opatřením, např. instalací větracího systému podloží pod objektem, při některé z těchto okolností:

• pod stavbou je vytvořena vrstva o vysoké propustnosti o tloušťce větší než 50 mm,

• součástí kontaktní konstrukce je podlahové vytápění,

• vysoký radonový index stavby.

Kombinace opatření se doporučuje i v dalších případech. Například, když lze očekávat riziko budoucího porušení protiradonové izolace nebo u výstavby v pasivním a lepším energetickém standardu.

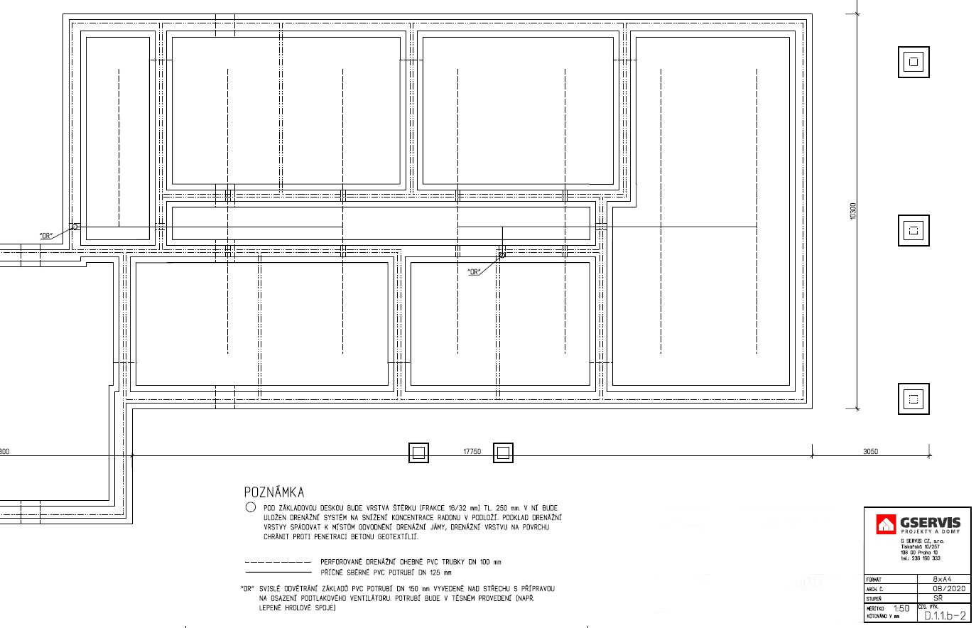
Ukázka principu větrání podloží pod pasivním rodinným domem založeným na tepelněizolačním zásypu je na obr. 3. Ukázka výkresu větrání podloží pod rodinným domem je na obr. 4.

Dále jsou uvedeny zásady pro:

•    nové stavby s intenzitou větrání vyšší než 0,6 h-1 (nucené větrání),

•    nové halové stavby pro výrobu a skladování,

•    nové stavby bez pobytového prostoru v kontaktním podlaží,

•    změny stávajících staveb (rekonstrukce).

Dimenzování protiradonové izolace

Protiradonová izolace se dimenzuje na základě znalosti radonového odporu konkrétního izolačního výrobku. Radonový odpor vyjadřuje schopnost výrobku omezovat difuzi radonu. Jedná se tedy o charakteristiku výrobku. Radonový odpor lze také dopočítat na základě znalosti hodnoty součinitele difuze radonu výrobku. V tabulce 1 je přehled značkových výrobků pro povlakové hydroizolace ze sortimentu společnosti STAVEBNINY DEK, pro které jsou k dispozici hodnoty radonového odporu nezbytné pro dimenzování protiradonové izolace. Protiradonová izolace se navrhuje a provádí tak, aby byla celistvá a spojitá v celé ploše konstrukce.

Tab. 1 – Radonový odpor výrobků DEK

Značkové výrobky Stavebnin DEK

Součinitel difuze radonu
D [m2·s-1]

Radonový odpor

ALKORPLAN 35 034 tl. 1,0 mm

1,80×10-11

57

ALKORPLAN 35 034 tl. 1,5 mm

1,80×10-11

87

ALKORPLAN 35 034 tl. 2,0 mm

1,80×10-11

120

GLASTEK 40 SPECIAL MINERAL

1,40×10-11

415

ELASTEK 40 SPECIAL MINERAL

1,90×10-11

278

ELASTEK 50 SPECIAL MINERAL

1,30×10-11

701

DEKGLASS G200 S4

1,70×10-11

321

GLASTEK 40 SPECIAL MINERAL

a ELASTEK 40 SPECIAL MINERAL

1,40×10-11 a 1,90×10-11

1 125

GLASTEK 40 SPECIAL MINERAL

a GLASTEK 40 SPECIAL MINERAL

1,40×10-11 a 1,40×10-11

2 039

Poznámka: Při kombinaci více vrstev materiálů (např. asfaltových pásů) nelze jejich dílčí radonové odpory sčítat prostým součtem. Radonový odpor protiradonové izolace musí být větší než minimální radonový odpor stanovený na základě návrhové hodnoty OAR a návrhové intenzity větrání.

V katalogu Skladby a systémy DEK v kapitole 7.1 Ochrana staveb proti radonu z podloží je k dispozici tabulka pro orientační návrh protiradonové izolace. Podle návrhové hodnoty koncentrace radonu (OAR) v pobytovém prostoru a podle návrhové intenzity větrání umožní stanovit za určeních podmínek minimální potřebný radonový odpor protiradonové izolace pro nízký, střední nebo vysoký radonový index stavby. Pro přesný návrh protiradonových opatření včetně dimenzování protiradonové izolace lze použít aplikaci ANTIRADON na www. deksoft.eu.

Zdroj: Katalog řešení, Stavebniny DEK 2022

Zdroj: GServis

Komplexní návrh stavby

Čistě z pohledu ochrany staveb před pronikáním radonu se doporučuje omezit kontakt stavby s podložím na minimum, konstrukce s protiradonovou izolací navrhovat v jednoduchých tvarech, nenavrhovat kolem stavby plochy s nízkou plynopropustností jako jsou asfalt a beton, na obsyp stavby navrhovat materiál s vysokou plynopropustností a nenavrhovat pod podlahovou konstrukci vrstvy o vysoké propustnosti.

Při komplexním posouzení opatření proti radonu například spolu se zásadami pro hydroizolační ochranu staveb nutně narazíme na rozpory mezi některými zásadami. Například snižování namáhání stavby vodou realizací drenáže využívající propustné zásypy a podsypy je v rozporu s výše uvedenými zásadami pro radon, stejně tak snaha odvést co nejrychleji vodu z okolí stavby po souvislé neprosákavé úpravě povrchu terénu. Výsledný návrh vyžaduje stanovení priorit zdravotních a ekonomických. Zdraví by mělo mít přednost. V takovém případě se budeme muset vzdát drenáže a nepropustných povrchů kolem stavby, pak nejspíš bude třeba ochranu proti vodě zajistit hydroizolací dimenzovanou na vyšší namáhání vodou. Ta sice bude dražší, ale zároveň u ní lze očekávat i výrazně vyšší radonový odpor. Jinou možností je přesunutí pobytových prostor do podlaží, která nejsou v kontaktu s podložím a uplatnit spíše zásady ochrany stavby před vodou.

Zdravotní rizika spojená s nesprávným návrhem protiradonové izolace

Pro jistotu znovu připomínám, že důsledkem chybně navržených nebo nesprávně realizovaných protiradonových opatření mohou být závažné zdravotní komplikace. Důsledkem působení částic zachycených v dýchacím ústrojí a následným ozařováním plicní tkáně může být poškození plicních buněk vedoucí až ke vzniku rakoviny plic. Riziko vzniku rakoviny způsobené radonem v budově je závislé na koncentraci a na délce expozice. Pro krátkodobé pobyty je riziko zanedbatelné v případě dlouhodobého pobytu závisí na koncentraci radonu. Celosvětově bylo riziko rakoviny plic prokázáno pro koncentrace radonu vyšší než 150 Bq/m3. Při každém zvýšení koncentrace radonu o 100 Bq/m3 se zvyšuje riziko o 16%. Při ročním pobytu v objektu s koncentrací 300 Bq/m3 je ozáření srovnatelné s ozářením způsobeným 330 rentgenovými snímky plic. V současné době nemáme poznatky o tom, že by ozáření z radonu vyvolávalo nějaká další onemocnění.

Technická podpora DEK

Společnost STAVEBNINY DEK a.s. nabízí technickou podporu konzultačního technika pro partnery registrované v programu DEKPARTNER při návrhu a posouzení povlakové izolace využívající materiály ze sortimentu společnosti z hlediska pronikání radonu z podloží do objektu ve všech fázích projektu.

 

Odborné a znalecké posudky staveb

 

Partneři programu