Logo Přihlásit | Registrovat

Přihlášení


Registrace do programu DEKPARTNER

Přihlašovací údaje
Zaměření*
Kontaktní údaje

Zapomenuté heslo


Vzdělávací centrum

Nesnáze realizace rekonstrukce střechy se sypkými vrstvami

Zveřejněno: 23. 6. 2020
byl publikován v DEKTIME 06/2020

Článek popisuje nesnáze, které provázely rekonstrukci střechy s povlakovou izolací a sypkými vrstvami tradičním způsobem - odtěžením vrstev a nahrazením vrstvami novými. Závěrem připomíná řešení stabilizace původního souvrství skrz sypké vrstvy novou progresivní metod, pomocí které se dá těmto problémům vyhnout či alespoň je výrazně eliminovat.

Autor:
Ing. Lukáš Klement
Konzultační technik v regionu Opava

autor
autor

V roce 2018 byl v Atelieru DEK dokončen vývoj řešení pro rekonstrukce střech, které obsahují nesoudržné vrstvy a nelze je proto považovat za spolehlivě stabilní proti účinkům větru nebo účinkům tangenciálních sil např. od smrštění materiálů povlakových hydroizolací. O principu řešení a jeho prvních aplikacích jsme informovali v článku ing. Roberta Kokty v DEKTIME 2018/09. Princip řešení spočívá v přikotvení původních vrstev střechy s pomocí Vrtací soupravy DEK a následném přilepení nových vrstev střechy v souladu s ČSN EN 1991-1-4. Vrtací souprava DEK byla vyvinuta v reakci našich techniků na potíže, které s sebou přináší konzervativní řešení založené na demontáži starých vrstev střechy a realizaci nového stabilního souvrství navrhované dosud ve snaze o splnění požadavků na stabilitu střech. V současné době máme možnost porovnávat obě řešení, protože ještě dobíhají realizace projektů s konzervativním řešením a zároveň se rozvíjejí realizace využívající Vrtací soupravu DEK. Tento článek informuje o nesnázích jedné takové konzervativní realizace na bytovém domě v Ostravě – Muglinově.

V roce 2018 byl zpracován projekt pro rekonstrukci střechy. Atelier DEK provedl pro projektanta sondu do střešního pláště pro ověření vrstev střechy.

Skladba střechy zjištěná sondou, od exteriéru:

  • souvrství asfaltových pásů 25 mm
  • expandovaný polystyren 50 mm
  • heraklitové desky 50 mm
  • násyp – lehčené kamenivo 70 mm (v místě sondy)
  • nosná žb deska

V době vzniku projektové dokumentace (05/2018) ještě nebyla k dispozici Vrtací souprava DEK, která umožňuje technicky správné a zároveň bezpečné řešení rekonstrukce těchto typů střech. Proto bylo navrženo kompletní odtěžení vrstev střechy až na nosnou konstrukci a následné provedení nových vrstev střechy.

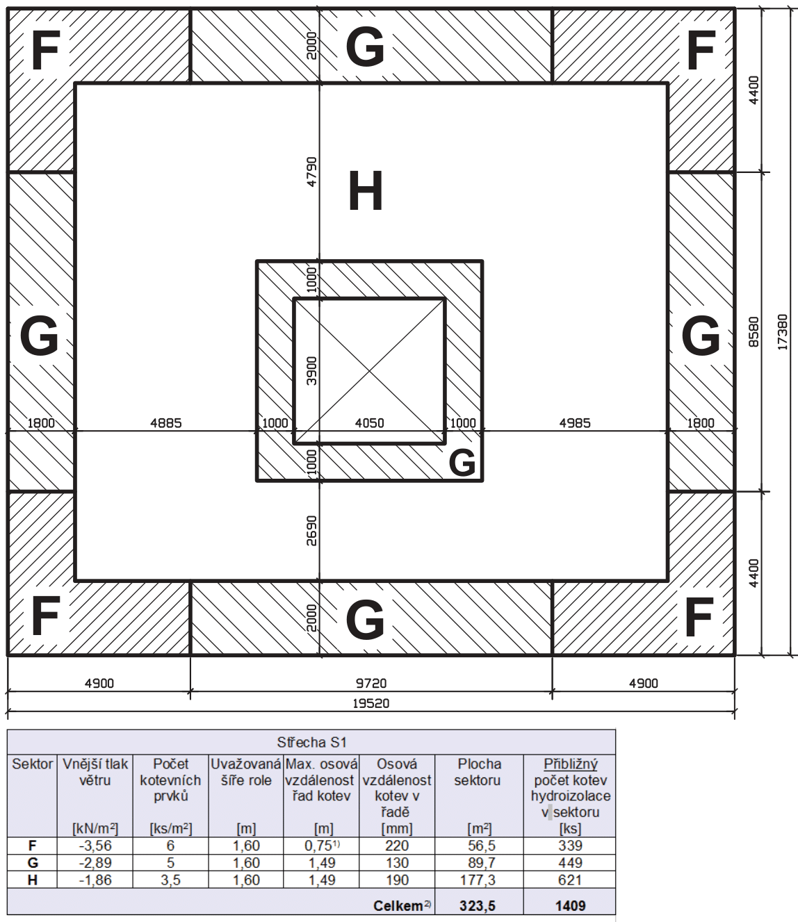
Pro střechu byl Konzultačními techniky Atelieru DEK vytvořen kotevní plán (obr. 1) pro stabilizaci zcela nových vrstev ploché střechy. Byl vyhotoven i kladečský plán spádových klínů (obr. 2) v tepelné izolaci, kde byl zvolen spád 3% (v souladu s normou ČSN 73 1901) - což se s ohledem na nerovnosti po odtěžení střechy ukázalo jako velmi dobrá volba.

Obr 01 Obr. 1 – Kotevní plán střechy dle ČSN EN 1991-1-4
Obr 02 Obr. 2 – Kladečský plán spádových klínů z EPS 100, spád 3%

V roce 2019 byl vybrán GDS, firma Tomáš STRAUB s.r.o. V té době již bylo možné na pobočkách Stavebnin DEK zakoupit potřebný materiál a zapůjčit si vybavení pro realizaci dodatečné stabilizace starého souvrství Vrtací soupravou DEK. Toto řešení konzultační technik Stavebnin DEK zhotoviteli doporučil. Bylo ale rozhodnuto dodržet původní projekt a provést odtěžení starých nesoudržných vrstev střechy.

Stávající hydroizolační vrstva z asfaltových pásů byla zvlněná (foto 1), jak v ploše tak i na vnitřních svislých plochách atik. Takové zvlnění je známkou toho, že střešní souvrství není správně připevněno k podkladu a že se pohybuje.

Na násypu byly položeny desky z heraklitu, desky POLSID z polystyrenu (foto 2) a několik vrstev asfaltových pásů. Vrstva násypu u atik byla vysoká až 400 mm (foto 3). V násypu se nacházely také cihly, které v minulosti tvořily systém větracích kanálků (foto 4). Odstraňování starých vrstev střechy probíhalo po etapách. Ihned po odtěžení vrstev se na nosné konstrukci prováděla provizorní hydroizolační vrstva z asfaltového pásu (foto 5). Při deštích se na provizorní hydroizolaci tvořily velké kaluže (foto 6). I přes všechna opatření došlo lokálně k zatečení do interiéru bytů (foto 8). Po odtěžení vrstev střechy byly na podkladu nerovnosti až 40 mm (foto 7), se kterými si izolatéři museli při realizaci poradit. S ohledem na deštivé období na jaře 2019 trvalo odstraňování střechy 2 měsíce.

Foto 01 Foto 1 – Zvlněná stávající hydroizolace
Foto 02 Foto 2 – Odstraňování starého souvrství střechy
Foto 03 Foto 3 – Násyp z lehčeného kameniva
Foto 04 Foto 4 – Vybourané cihly, které tvořily větrací kanálky, heraklitové desky
Foto 05 Foto 5 – Etapové zabezpečení provizorní hydroizolace
Foto 06 Foto 6 – Kaluže na provizorní hydroizolaci
Foto 07 Foto 7 – Nerovnosti na provizorní hydroizolaci
Foto 08 Foto 8 – Zatečení do interiéru

Bylo nutné provést vyrovnání podkladu – povrchu nosné konstrukce. Izolatéři se rozhodli pro podložení deskami EPS v různých tloušťkách (foto 9), tak aby bylo možné provést správné spádování střechy ke vtokům dle kladečského plánu. Spádová vrstva byla provedena z tepelné izolace EPS 100, ve spádu 3%. Spádové desky 1 x 1 m byly vyrobeny v tl. od 30 mm a podloženy rovnými deskami o tl. 120 a 240 mm. Na spádové desky se ještě pokládaly rovné desky EPS 100 o celkové tlloušťce 220 mm (foto 10).

Foto 09 Foto 9 – Podložení tepelné izolace
Foto 10 Foto 10 – Spádová vrstva z EPS 100, spád 3%

Hlavní hydroizolační vrstva byla provedena z kotvené TPO fólie MAPEPLAN TM (foto 11,12). Byla použita fólie tloušťky 1,5 mm svařovaná horkým vzduchem v přesazích. Kotevní prvek je umístěn ve spoji folií. U TPO fólie není nutné provádět separační vrstvu z textilie od EPS, což si izolatéři pochvalovali. Fólie byla vytažena až na korunu atiky. Tvar hydroizolace v přechodech mezi plochami střechy a atik zajistily lišty z poplastovaného plechu. Na střeše byl proveden také záchytný systém proti pádu osob.

Foto 11 Foto 11 – Provedená hydroizolace z TPO folie
Foto 12 Foto 12 – Hotová hydroizolace, vytažení na atiky

Díky úsilí, zkušenostem a pečlivosti zhotovitele proběhla rekonstrukce střechy zdárně. Nám ale její průběh potvrdil, že náš záměr vyvinout novou metodu pro rekonstrukce střech se sypkými vrstvami byl správný.

V současné době provádíme a navrhujeme rekonstrukce plochých střech se sypkými vrstvami s využitím Vrtací soupravy DEK. Konzultační technici Atelieru DEK vytvoří pro projektanty i pro realizační firmy kotevní plán pro stabilizaci stávajících vrstev střech a plán lepení nových vrstev s udanou spotřebou PU lepidla. Provádění rekonstrukce střechy s využitím Vrtací soupravy DEK je možné shlédnout na montážním videu na YOUTUBE - DEK Stavebniny.

Partneři programu