Logo Přihlásit | Registrovat

Přihlášení


Registrace do programu DEKPARTNER

Přihlašovací údaje
Zaměření*
Kontaktní údaje

Zapomenuté heslo


Vzdělávací centrum

REKONSTRUKCE STŘECHY AQUACENTRA V BOHUMÍNĚ

Zveřejněno: 17. 6. 2014
byl publikován v DEKTIME /2014

Výstavba Aquacentra začala na podzim roku 2003. Objekt se dělí dle provozu na tři části – bazénová hala, zázemí k bazénové hale a prostory pro provoz bazénu. Střechy objektu jsou řešeny jako obloukové s nosnou konstrukcí z dřevěných lepených vazníků. V následujícím článku se budeme zabývat pouze střechou nad bazénovou halou.

Článek vyšel také ve SBORNÍKU SEMINÁŘE 2014 (viz pdf).

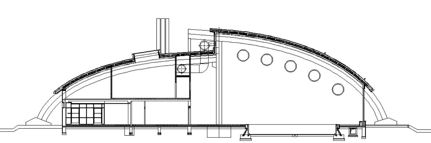
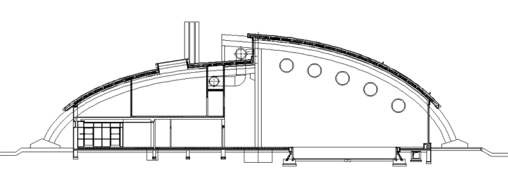
Zázemí bazénové haly Bazénová hala
obrázek 1.
obrázek 1. schématický řez Aquacentrem

Na nosné konstrukci střechy bazénové haly byla navržena a provedena lehká tříplášťová střecha.
Původní skladba střechy bazénové haly (od exteriéru):

  • Plechová krytina tl. 0,6 mm spojovaná na dvojitou stojatou drážku (falcovaná krytina)
  • Podkladní fólie lehkého typu
  • Bednění z prken tl. 24 mm
  • Větraná vzduchová vrstva tl. 120 mm
  • Difuzní fólie lehkého typu
  • Nevětraná vzduchová vrstva tl. 30 mm
  • Tepelná izolace ze skelné vaty tl. 160 mm mezi dřevěné hranoly 140/200 mm
  • Tepelná izolace ze skelné vaty tl. 50 mm mezi dřevěnými latěmi 50/50 mm
  • Parozábrana z PE fólie
  • Větraná vzduchová vrstva tl. 150 mm
  • Akustický zavěšený podhled tl. 30 mm
obrázek 2
obrázek 2. skladba střechy
foto 1
foto 1. tepelná izolace mezi dřevěnými latěmi
foto 2
foto 2. parozábrana z PE fólie

Realizace stavby finišovala na podzim roku 2004. Ještě před otevřením objektu pro veřejnost, krátce po začátku vytápění a napuštění bazénu, se začaly projevovat vlhkostní poruchy. V napojení střechy na obvodovou prosklenou stěnu se objevily vlhké mapy /foto 4/.

foto 3
foto 3. dokončená bazénová hala
foto 4
foto 2. parozábrana z PE fólie

Další vlhké mapy se ukázaly v ploše podhledové konstrukce střešního pláště /foto 5/ . Poslední zjevný defekt se projevil v kondenzaci vody na rámech a prosklení oken /foto 6/. Následný kolotoč dopisování a schůzek investora s projektantem a realizační firmou na sebe nenechal dlouho čekat. Regionální význam akce byl však velký, zprovoznění objektu muselo proběhnout ve stanoveném termínu. Očekávanou reklamací díla, která přišla ještě před otevřením Aqacentra pro veřejnost, se zde zabývat nebudeme.

foto 5
foto 5. vlhkostní mapa na podhledové konstrukci
foto 6
foto 6. kondenzace páry na rámu okna

Rozčarování z výsledného díla dále narůstalo se zvyšujícím se počtem vlhkostních poruch. Z důvodu odhalení příčin jejich vzniku si investor nechal zpracovat několik odborných posudků řešené střechy. K řešení vedl až posudek společnosti Dekprojekt s.r.o., kterému předcházel pečlivý průzkum s diagnostikou Blower-door testem. Byla provedena prohlídka střechy a také několik sond z interiérové i exteriérové strany do skladby střešního pláště.

Opakující se vlhké mapy na ploše podhledu naznačovaly systémovou perforaci parozábrany od kotevních prvků dřevěného laťování a nosného roštu podhledových desek. Provedeným průzkumem se toto potvrdilo. Na mnoha místech byly nalezeny i neslepené či rozlepené spoje parozábrany /foto 7/. Také napojení parozábrany na prostupující a navazující konstrukce nebylo provedeno dokonale /foto 8/

foto 7
foto 7. neslepené spoje parozábrany, připojení dřevěných latí a nosného roštu podhledu přes parozábranu
foto 8
foto 8. nevzduchotěsné napojení parozábrany na obvodové konstrukce, perforace kotevními prvky

Nevzduchotěsné provedení parozábrany vedlo k možnosti prostupu vodní páry do skladby střechy a při styku s chladnými povrchy k její kondenzaci a následnému odkapávání skrze netěsnosti v parozábraně na podhledové desky. Dalším pravděpodobným místem prostupu vlhkého vzduchu do skladby střechy je i netěsné napojení konstrukcí dřevěného nadpraží a vazníků /foto 9/. Realizační firma se sice snažila dotěsnit tento spoj pomocí lepící pásky a PUR pěny, ovšem páska není nalepena dokonale a PUR pěnu nelze považovat za parotěsnící.

foto 9
foto 9. nevzduchotěsné napojení konstrukcí dřevěného vazníku a nadpraží okna
foto 10
foto 10. vodní hladina za parozábranou v horní části obloukové střechy

Použitá plechová krytina s dvojitou stojatou drážkou (falcovaná krytina) má ve vrcholové části bazénové haly minimální sklon blížící se 0°. To je méně, než udává ve svých podkladech výrobce a také méně, než doporučuje norma ČSN 73 3610 v tabulce B1. V místech spojených dvojitou stojatou drážkou je při vrstvě sněhu nebo silném dešti pravděpodobné, že se voda dostane do skladby právě tímto spojem.

Všechny odborné posudky se shodovaly v tom, že byla nešťastně zvolena skladba tříplášťové střechy s velkým rizikem netěsností jak pro páru, tak pro srážkovou vodu. Parozábrana na /fotu 10/, zatížená vrstvou vody, to jasně dokládala.

REKONSTRUKCE

Z několika možných variant rekonstrukce byla v posudku společnosti DEKPROJEKT jako nejbezpečnější doporučena demontáž stávajícího střešního pláště a provedení nové skladby nad stávající dřevěné lepené vazníky.

Doporučená skladba střechy (od exteriéru, obr. 3):
  • Plechová krytina spojovaná na dvojitou stojatou drážku (s vloženým těsněním do drážky v horní polovině střechy)
  • Podkladní fólie lehkého typu s nakašírovanou smyčkovou rohoží
  • Bednění z OSB desek
  • Větraná vzduchová vrstva
  • Doplňková hydroizolační vrstva GLASTEK 30 STICKER PLUS
  • Tepelná izolace na bázi polyisokyanurátu TOPDEK 022 PIR V TL. 300mm
  • Parozábrana z asfaltového pásu s AL vložkou GLASTEK AL 40 MINERAL
  • Parozábrana z asfaltového pásu GLASTEK 40 SPECIAL MINERAL
  • Podkladní pás typu V13
  • Bednění z OSB desek
  • Dřevěné vaznice a hranoly dle návrhu statika
  • Větraná vzduchová vrstva
  • Akustický zavěšený podhled tl. 30 mm
obrázek 3
obrázek 3. Příčný řez doporučenou skladbou střechy

Po předání odborných posudků dění kolem Aqucentra na dlouhou dobu utichlo. Až na podzim roku 2011 se investor rozhodl střechu rekonstruovat podle nastíněné skladby. Do akce vstoupila nová projekční kancelář Atris s.r.o., která společně se společností Dekprojekt s.r.o. připravila projektovou dokumentaci.

V rámci projektu byl pečlivě hlídán vlhkostní režim střešní konstrukce jak v ploše tak i v detailech.

obrázek 4
obrázek 4. schéma výpočtového modelu a výpočtového teplotního pole detailu u okapu

Rekonstrukce střechy začala v září roku 2012 a trvala šest týdnů. Realizace postupovala etapově, rozebráním a zakrytím vždy maximálně dvou až tří polí zároveň. V rámci rekonstrukce byla střecha prodloužena ve vrcholu oblouku o cca 3,5 metrů a navýšen sklon střechy v tomto místě na minimálně 5° /foto 11/.

foto 11
foto 11. prodloužení střechy u vrcholu oblouku
foto 12
foto 12. realizace střechy

Ze statických důvodů byly ve skladbě střechy v rámci vrstvy tepelné izolace provedeny příčné ztužující dřevěné trámy. Zabudování dřeva ve skladbě bylo umožněno díky velké vrstvě tepelné izolace nad nimi a pečlivé kontrole tepelnětechnickými výpočty jak v ploše tak i v detailech.

foto 13
foto 13. provádění tepelněizolační vrstvy
foto 14
foto 14. realizace střechy

Pro zvýšení hydroizolační bezpečnosti plechové krytiny bylo do spojů dvojité stojaté drážky v horní polovině plochy střechy vkládáno těsnění /foto 16/.

foto 15
foto 16. realizace plechové falcované krytiny
foto 16
foto 17. hotová střecha

Dle současně dostupných informací je stavba funkční a užívána ke spokojenosti investora i návštěvníků.



Autor:

Ing. Jiří Vilášek Ing. Jiří Vilášek, Technik Atelieru DEK v regionu Ostrava, Karviná, Třinec
V Atelieru DEK pracuje od roku 2006, mezi oblíbené specializace patří ploché střechy
jiri.vilasek@dek-cz.com, +420 739 588 400
Partneři programu