Logo Přihlásit | Registrovat

Přihlášení


Registrace do programu DEKPARTNER

Přihlašovací údaje
Zaměření*
Kontaktní údaje

Zapomenuté heslo


Vzdělávací centrum

RODINNÝ DŮM V KONSTRUKČNÍM SYSTÉMU DEKPANEL

V průběhu roku 2014 se mnozí z Vás při pravidelných návštěvách techniků Atelieru DEK dozvěděli o novince zařazené do sortimentu společnosti DEKTRADE – konstrukčním systému pro dřevostavby DEKPANEL. Součástí prezentace bylo i předání projekčních podkladů tohoto systému. Od té doby vyrostlo na našem území několik desítek domů, u většiny z nich jsme se technicky podíleli na projektové přípravě i realizaci. V dnešním článku bychom Vám chtěli přiblížit přípravu i realizaci jednoho z rodinných domů, při které byl využit právě konstrukční systém DEKPANEL.

Základním požadavkem investora byla realizace dřevostavby rodinného domu v některém z panelových systémů. Po prezentaci výhod systému DEKPANEL, mezi které patří zejména přesnost opracování na CNC obráběcím centru, rychlost montáže, nezávislost montáže na počasí (předpoklad termínu realizace hrubé stavby byl začátkem prosince), výborné výsledky při testech vzduchotěsnosti hotového objektu a příznivá cena oproti lepeným systémům, se investor rozhodl pro tento konstrukční systém.

Obr. 1, 2 – Část projektových podkladů pro projektanty poskytovaných v rámci servisu techniky Atelieru DEK

Masivní dřevěné panely DEKPANEL D jsou vytvořené obvykle ze tří vrstev vzájemně kolmo orientovaných hoblovaných prken tl. 27 mm. Vrstvy prken jsou vzájemně propojeny vruty v pravidelném rastru. Do panelů tvořících vnější stěny je integrována vzduchotěsnicí folie. Okraje panelů jsou opatřeny páskami, které panel chrání před povětrnostními vlivy a zároveň umožňují vzduchotěsné provedení styků panelů.

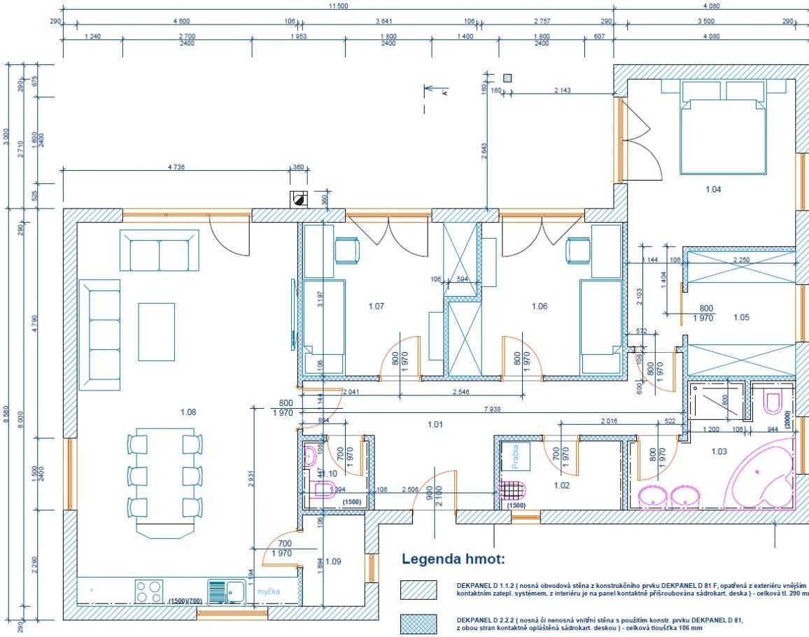
Příprava stavby byla zadána projektantovi, který se specializuje na projekty dřevostaveb ze systému 2by4 (lehké rámy z dřevěných hranolů opláštěných deskovým materiálem). Podle jeho předpokladu nepředstavoval projekt dřevostavby v systému DEKPANEL žádný zásadní problém. Naopak. Projektant měl k dispozici kompletní projektové podklady, jejichž součástí jsou technické parametry (tepelnětechnické, akustické, požární, statické apod.) a vzhledem k tomu, že montážní dokumentaci zajišťujeme v rámci servisu pro realizaci zdarma, byla projektová příprava o to jednodušší.

Obr 3
Obr. 3 – Část projektové dokumentace zpracované projektantem

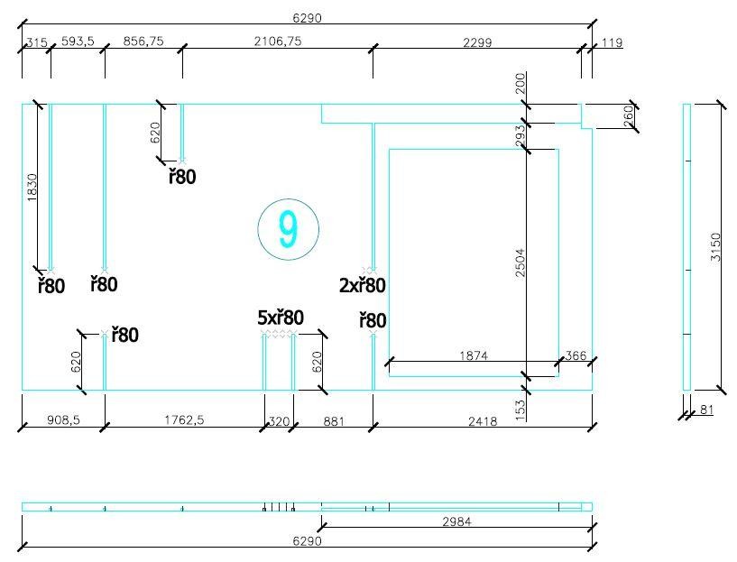
Na základě projektu zpracoval technik pro systém DEKPANEL výrobní dokumentaci a předal ji k odsouhlasení investorovi a vybrané realizační firmě. Součástí výrobní dokumentace je kromě panelů s otvory též příprava pro osazení vodorovné nosné konstrukce stropů, resp. střešní konstrukce a též příprava tras vnitřních kabelových rozvodů s vyfrézovanými otvory pro elektroinstalační krabičky. Součástí výrobní dokumentace je také přesný 3D pdf model, který slouží ke shlédnutí celé konstrukce se všemi návaznostmi a detaily. Díky tomu je možná jednoduchá komunikace a předchází se chybám na realizované stavbě.

Obr 4
Obr 5
Obr 6
Obr. 4, 5, 6 – Grafická část výrobní dokumentace zpracované technikem pro systém DEKPANEL

Po odsouhlasení dokumentace byla zahájena výroba v moderním CNC obráběcím centru. Standardní rozměry panelů, které jsme schopni vyrobit jsou až 3,5 × 12,5 m.

Foto 1
Foto 1 – Výroba panelů

Následovala montáž hrubé stavby vybranou realizační firmou. Na připravené základy, opatřené shora hydroizolací a ochrannou betonovou mazaninou se nejprve vytyčila poloha budoucích stěn a osadily se ocelové úhelníky. Úhelníky se osazují vždy pouze z jedné strany panelu a ukotví se obvykle nejprve jednou průvlakovou kotvou do podkladu. Úhelníky se osazují minimálně 200 mm od konce panelů, popř. otvorů v panelech.

Foto 2
Foto 2 – Připravené kotevní úhelníky, montáž panelů

Následně se do budoucí pozice osazované stěny položí výškové podpěry (dřevěné destičky nebo klínky), jejichž výška se kontroluje nivelačním přístrojem. Do trasy budoucího osazení panelu se na podklad nanese výplňová malta. Panel se pomocí hydraulické ruky, kterou může dálkově ovládat strojník, osadí do správné polohy a provizorně se staticky zajistí vzpěrou.

Foto 3
Foto 4
Foto 5
Foto 3, 4, 5 – Průběh osazování a provizorního statického zajištění panelu

Panely se montážně přikotví k ocelovým úhelníkům vruty (pro případnou možnost úpravy jejich polohy) a přebytečná výplňová malta se odebere. Po zatvrdnutí malty se odstraní i distanční destičky a vzniklý prostor se opět vyplní maltou. Provizorní vzpěry lze demontovat vždy po vytvoření stabilního celku z několika sousedních stěn.

Panely se vzájemně spojují vruty. Vzduchotěsné propojení obvodových panelů se zajišťuje přilepením kompresní DEKPANEL pěnové pásky tl. 5 mm. Montážní otvory pro popruhy se po odepnutí panelů z jeřábu zapraví dřevěnými kolíky s tmelem AIRSTOP SPRINT.

Realizace stěn předmětného rodinného domu v systému DEKPANEL trvala prováděcí firmě dva montážní dny. Po provedení obvodového průvlaku v úrovni horní hrany panelů následovala realizace dřevěných střešních vazníků. Stavba je tak „pod střechou“ během několika dní a to bez použití mokrých procesů. Což dále usnadňuje pokračování dalších etap realizace zejména v zimním období.

Foto 6
Foto 7
Foto 6, 7 – Pohled na dokončené stěny dřevostavby v systému DEKPANEL po dvou montážních dnech
Foto 8
Foto 8 – Pohled na dokončenou hrubou stavbu

Realizační firma si jednoduchost montáže velmi pochvalovala. Realizace proběhla v krátkém časovém horizontu, přestože s podobným systémem neměli pracovníci firmy zkušenost. Dle sdělení majitele firmy v současné době probíhá příprava dalšího objektu v konstrukčním systému DEKPANEL na jedné ze sousedních parcel.

Autor:

Ing. Tomáš Kafka Ing. Martin Voltner,
Vedoucí technik v regionu Východočeský, Technik v regionu pro pobočky Svitavy a Ústí nad Orlicí
V Atelieru DEK pracuje od roku 2005
martin.voltner@dek-cz.com, +420 731 421 952
Partneři programu