Logo Přihlásit | Registrovat

Přihlášení


Registrace do programu DEKPARTNER

Přihlašovací údaje
Zaměření*
Kontaktní údaje

Zapomenuté heslo


Vzdělávací centrum

Střešní systém TOPDEK na střeše z masivních dřevěných panelů

Zveřejněno: 13. 7. 2022
Ing. Peter Hurban
Stavebniny DEK a.s., vedoucí technického oddělení
Všechny články autora

Konzultační technik Atelieru DEK sledoval realizaci nadkrokevní skladby střechy na rodinném domě, jehož nosné konstrukce stěn i střechy jsou z dřevěných panelů. Realizace ukázala velké výhody této kombinace konstrukčních systémů.

Systém TOPDEK na střeše z masivních dřevěných panelů

Systém TOPDEK s nadkrokevní izolací je ve své tradiční podobě, nad nosnou konstrukcí tvořenou dřevěným krovem, běžnou součástí stavební praxe. Přibývá také realizací nad šikmou stropní konstrukcí tvořenou prvky z pórobetonu či keramiky, které přinášejí další benefity (viz DEKTIME 07/2021). Například z hlediska akustiky, nebo akumulace tepla. Uvedené varianty jsou součástí systémových řešení Atelieru DEK obsažených ve Stavební knihovně DEK.

V tomto článku si ukážeme další méně obvyklé konstrukční řešení – a sice nadkrokevní izolaci nad nosnou konstrukcí ve spádu tvořenou masivními panely z křížem lepeného dřeva (CLT).

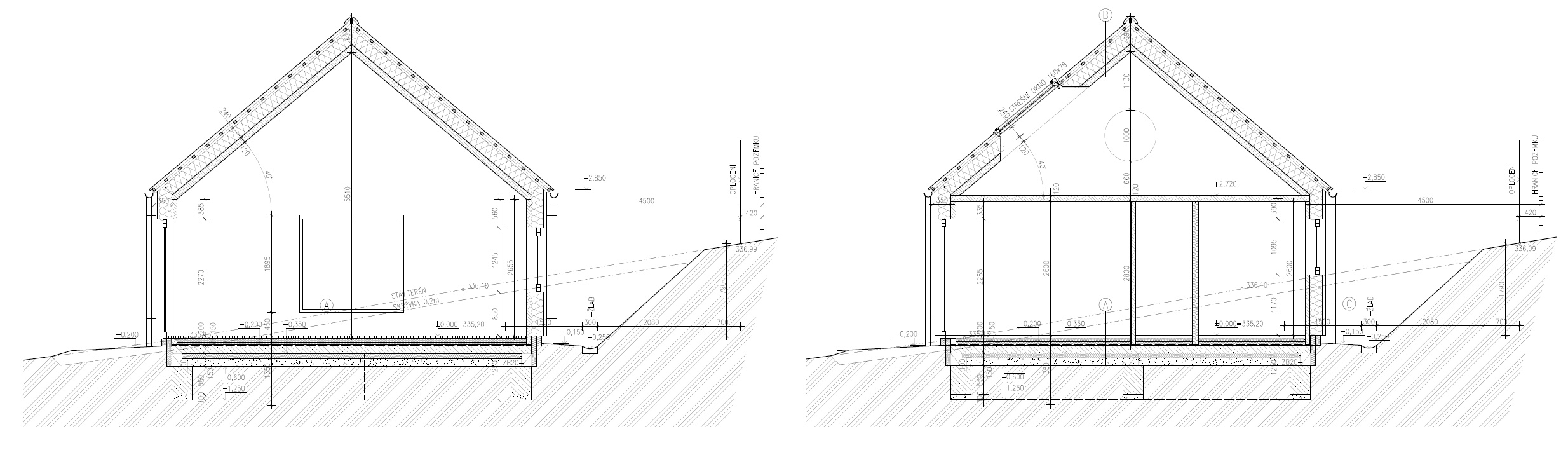
Investor a zhotovitel objektu v jedné osobě zvolil pro stavbu vlastního rodinného domu tvarově jednoduché a funkční uspořádání bez složitých konstrukčních detailů. K oběma štítům přiléhají prostory otevřené až do vrcholu střechy. V centrální části jsou přízemní prostory a nad nimi podkrovní místnost, také otevřená až do vrcholu střechy. Investor chtěl docílit toho, aby vnitřní povrchy všech místností tvořily dřevěné biodesky. Proto byly stěny, strop v centrální části domu i nosná konstrukce střechy navrženy z dřevěných panelů. Pro jejich montáž byla na stavbě nezbytná těžká mechanizace. Při stejné zastavěné ploše poskytlo použití dřevěných panelů pro stěny větší užitnou plochu místností než ostatní konstrukční systémy.

Skladba střechy se skládanou krytinou nad nosnou konstrukcí ve sklonu 40 ° odpovídá obvyklému uspořádání. Od exteriéru vypadá následovně:

- pálené tašky,

- latě 60 x 40 mm,

- kontralatě 60 x 40 mm s podtěsněním tmelem DEKTEN KONTRA,

- doplňková hydroizolační vrstva z lehké fólie tvořené netkanou textilií s polyuretanovým zátěrem JUTADACH,

- tepelná izolace z polyisokyanurátu TOPDEK 022 PIR tl. 2 x 120 mm,

- parotěsnicí a vzduchotěsnicí asfaltový pás TOPDEK AL BARRIER tl. 2,2 mm,

- stropní CLT panel tl. 120 mm.

Zajímavým bodem realizace jsou smykové podpory (námětky), které se podílejí na stabilizaci střešní skladby proti sesunutí a zároveň vynášejí okraj střechy do vzdálenosti 420 mm od vnějšího povrchu panelů obvodové stěny. Tato vzdálenost odpovídá celkové tloušťce navržené skladby větrané fasády. Po dokončení fasády přesah střechy zmizí, jediným prvkem přesahujícím přes styk střechy s fasádou po dokončení stavby zůstane přiznaný podokapní žlab. Návrh i realizace námětků byly snazší díky tomu, že nosný panel, do kterého se celá skladba fixuje, je v celé ploše materiálově homogenní. Nebylo nutné brát ohled na přesnou polohu dřevěných krokví nebo ztužujících žeber, jako je tomu při fixaci smykových podpor u systémových skladeb TOPDEK na krovech nebo na keramických či pórobetonových šikmých konstrukcích zmíněných v úvodu článku.

Jak je z obr. 5 patrné, podpory byly provedeny jako dvojdílné. Spodní, delší, díl výšky 120 mm je zabudován ve spodní vrstvě tepelného izolantu z PIR a je překryt druhou vrstvou izolantu. Tím dojde k minimalizaci tepelného mostu od zabudování podpor do izolace. Kotvení podpor do nosného panelu bylo provedeno z pozinkovaných úhelníků a SBS vrutů.

Při pokládání tepelné izolace si zhotovitel vysloveně vyhrál s frézováním polyisokyanurátových desek v místech, kde byly upevněny úhelníky tak, aby desky dokonale dosedly na povrch parozábrany. Takový postup sice není z hlediska funkčnosti skladby nutný, ale s ohledem na skvělý výsledek si zmínku zaslouží.

Důležitá byla příprava elektroinstalací, které byly vedeny v drážkách vyfrézovaných do tepelné izolace nad parozábranou. Jakékoli dodatečné změny by byly problematické.

Nedílnou součástí systému TOPDEK jsou okenní dílce pro spolehlivé zabudování střešních oken do skladby šikmé střechy. Na této stavbě sloužily pro vynesení dvou oken ROTO R89G. Zabudování okenních dílců do skladby proběhlo standardním způsobem nad otvory připravenými ve střešních CLT panelech již z výroby (obr. 4).

Konstrukční řešení splnilo investorova očekávání po funkční i estetické stránce. Realizaci skladby s nadkrokevní izolací z polyisokyanurátu nad nosnou konstrukci z dřevěných CLT panelů lze zároveň hodnotit jako technologicky přívětivou. K obvyklým výhodám nadkrokevní skladby patří především:

- rychlá montáž spolehlivé parozábrany z asfaltového pásu na souvislý tuhý podklad,

- montáž doplňkové hydroizolační vrstvy na dostatečně tuhý podklad z PIR.

V případě střechy s nosnou konstrukcí z dřevěných panelů je třeba přidat další významné výhody:

- pohodlná montáž úhelníků i vrutů TOPDEK ASSY do podkladu,

- volnost projektanta i zhotovitele v umístění smykových podpor kotvených úhelníky a navazujících kontralatí kotvených vruty TOPDEK ASSY kdekoli v ploše střechy.

Aktuálně je dokončena šikmá střecha, probíhá realizace větrané fasády.



Partneři programu