Logo Přihlásit | Registrovat

Přihlášení


Registrace do programu DEKPARTNER

Přihlašovací údaje
Zaměření*
Kontaktní údaje

Zapomenuté heslo


Vzdělávací centrum

Využití výsledků zkoušek únosnosti systému kotvení hydroizolačního povlaku v návrhu skladby

Zveřejněno: 22. 8. 2016
Ing. Robert Kokta
DEK a.s., Vedoucí oddělení výzkumu a vývoje, Experimentální centrum DERIC
Všechny články autora

Mechanicky kotvené hydroizolační povlaky se velmi často používají na střechách rozlehlých objektů skladovacích a výrobních hal nebo obchodních center. Zvláště na těchto rozlehlých objektech, kde je navíc obvykle veliký tlak na cenu, se vyplatí zabývat se optimalizací počtu navržených kotevních prvků.

Začněme krátkým úvodem o navrhování mechanického kotvení.
Počet kotevních prvků potřebných ke stabilizaci čtverečního metru ploché střechy vůči účinkům sání větru se stanoví na základě znalosti:

  • návrhového zatížení větrem [kN/m2],

  • návrhové únosnosti kotevního prvku [kN].

Návrhové zatížení větrem se v souladu s vyhláškou č. 268/2009 Sb. o technických požadavcích na stavby stanovuje dle technického předpisu ČSN EN 1991-1-4 (73 0035) – Zatížení konstrukcí – Část 1-4: Obecná zatížení – Zatížení větrem. Na základě údajů o geometrii objektu, geografických poměrech v místě stavby a konstrukčním řešení konkrétní střechy se stanoví návrhové hodnoty namáhání větrem pro jednotlivé zóny střechy (rohová, okrajová, vnitřní) v kN/m2. Orientační hodnoty zatížení větrem na jednotlivé části ploché střechy (pro jednodušší případy) jsou pro představu čtenáře uvedeny v tabulce 1 (zdroj [1], uvažováno pro II. kategorii terénu dle [3]).

Návrhová únosnost kotevního prvku se stanovuje dle předpisu ETAG 006. Ve výpočtech se obvykle uvažuje empirická hodnota 0,4 kN, což je minimální požadovaná výpočtová únosnost kotevních prvků s certifikátem ETA (pro konkrétní výpočet je potom nutné tuto hodnotu „obhájit“ výsledky zkoušek únosnosti kotevního prvku v podkladu, tzv. výtažných zkoušek, se zahrnutím bezpečnostního součinitele). Orientační množství kotevních prvků s únosností 0,4 kN potřebných na čtvereční metr ukazuje tabulka 2 (zdroj [1]).

Při pohledu na hodnoty v tabulce 2 je patrné, že zajištění stability střechy dle požadavků norem bude u některých typů objektů vykoupeno nutností použít poměrně vysoký počet kotevních prvků. To s sebou nese některá další negativa:

  • Se vzrůstajícím počtem kotev dramaticky roste pracnost pokládky. Kromě zvýšení pracnosti při samotném kotvení jsou často izolatéři nuceni kotvit hydroizolační vrstvu i v ploše a následně provádět záplaty, nebo používat užší pruhy hydroizolačních pásů (do metru běžného spoje hydroizolačního povlaku lze osadit pouze omezený počet kusů kotev) . Vinou toho roste délka prováděných spojů a tím i spotřeba hydroizolační fólie.

  • Roste míra perforace parotěsnicí vrstvy kotevními prvky (reálným problémem je to především u parotěsnicích vrstev realizovaných z fólií lehkého typu a v případech, kdy parotěsnicí vrstva plní i funkci pojistné hydroizolace).

  • Roste počet systematických tepelných mostů ve skladbě střechy (bodový činitel běžné kovové střešní kotvy s plastovým teleskopem je cca 0,002 W/K).

EXISTUJE LEGÁLNÍ CESTA, JAK SNÍŽIT POČET KOTEV V PLOCHÉ STŘEŠE?

Je to jasné. Čím větší únosnost sestavy podklad - kotva - kotvený materiál, tím méně kotev. Technický předpis ETAG 006 [4] umožňuje na základě laboratorních zkoušek ve skutečném měřítku (tzv. wind uplift test) počítat s vyšší návrhovou únosností kotvy, než je výše zmíněných 400 N. Uváděná laboratorní zkouška je vždy platná pouze pro danou kombinaci hydroizolačního povlaku, kotevního prvku a typu podkladu. Při zkoušce je reálný model střešní skladby ve skutečné velikosti umístěn do speciální komory (foto 1), ve které se simuluje dynamické namáhání skladby větrem (foto 4). Při zkoušce se hodnotí komplexně statická funkce celého systému. Tzn. sleduje se nejen vytržení kotvy z podkladu, ale také poškození samotného kotevního prvku, hydroizolačního povlaku nebo jeho spoje a vytržení povlakové hydroizolace z hlavy kotvy (obr. 1).

Společnost STAVEBNINY DEK si zadala v loňském roce testy metodou „wind uplift test“ pro hydroizolační PVC-P fólii DEKPLAN 76 v kombinaci s kotvami od předních výrobců kotevní techniky - partnerů společnosti STAVEBNINY DEK. Všechny kombinace ke zkouškám vybraných kotev s PVC-P fólií DEKPLAN 76 výrazně převyšovaly minimální požadovanou hodnotu únosnosti 0,4 kN a technici ATELIERU DEK tak nyní disponují arzenálem kotevních prvků s vyšší únosností pro statické výpočty.

Video 4. Pohled do zkušební komory během zkoušky

JAK MOC SE VYPLATÍ POUŽÍT KOTVU S VYŠŠÍ ÚNOSNOSTÍ ?

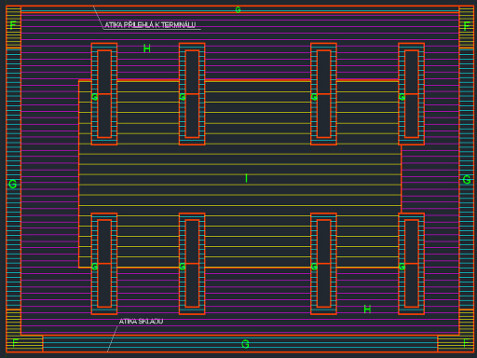
Tuto otázku jsme si sami z pozice investora položili před realizací ploché střechy nové skladovací haly pobočky společnosti STAVEBNINY DEK v Brně (foto 6). Objekt měl být zastřešen plochou jednoplášťovou střechou o ploše 2795 m2 s nosnou konstrukcí z trapézového plechu s vlnou 150/280 a s hydroizolačním povlakem z fólie DEKPLAN 76 (skladba vycházela z typové skladby DEKROOF 14-B). Hydroizolační fólie se u tohoto typu skladby klade kolmo k vlnám trapézového plechu, přičemž kotvit lze pouze do horní vlny (obr. 2). Pro daný rozměr plechu to znamenalo maximálně 3,57 kotev v běžném metru spoje fólie. Před realizací jsme provedli porovnání potřebného počtu kotevních prvků a délky prováděných spojů hydroizolační fólie pro kotevní prvky s různou návrhovou únosností v rozpětí 400 - 700 N.

Nejdříve jsme stanovili plochu jednotlivých oblastí střechy (rohová, okrajová, vnitřní) a počet kotev/m2 pro jednotlivé oblasti (obr. 3, tab. 3).

Následně jsme porovnali celkový potřebný počet kotev vůči sání větru (do výpočtu nebyly zahrnuty kotvy pro montážní kotvení desek tepelné izolace) a počet prováděných spojů hydroizolační fólie (obr. 4, 6).

Z výsledků je patrné, že při použití kotevního prvku s únosností 0,5 kN byla spotřeba kotevních prvků nižší cca o 3200 ks oproti kotevním prvkům s únosností 0,4 kN a počet prováděných spojů fólie se snížil o více než 1000 bm! Pro bližší představu to znamená úsporu cca 110 m2 hydroizolační fólie (při šířce překrytí ve spoji 11cm) a jen na samotném svařování spojů fólie více než 8 hodin práce izolatéra a svařovacího automatu o příkonu 5700 W. Zvýšení návrhové únosnosti kotvy nad minimální hodnotu 400 N tak přineslo značné ekonomické úspory a zkvalitnění celé skladby.

Z hlavních přínosů použití menšího počtu kotev lze zmínit:

  • snížení počtu potřebných kotevních prvků,

  • snížení pracnosti na stavbě (při pokládce, svařování a kotvení hydroizolační fólie),

  • menší počet spojů = menší pravděpodobnost hydroizolačního defektu,

  • snížení spotřeby hydroizolační fólie,

  • menší míra perforace parotěsnicí vrstvy,

  • méně tepelných mostů ve skladbě střechy.

Z porovnání dále vyplynulo, že zvyšování návrhové únosnosti kotvy a zvyšování úspor nebude v přímé úměře. Respektive další zvyšování návrhové únosnosti kotvy nad hodnoty přibližně od 500 N výše již tak značné úspory nepřinese. V případě naší střechy to bylo dáno tím, že počet kotev nelze snižovat „donekonečna“ (především ve vnitřní zóně střechy, kde je počet kotev na m2 nejmenší). Lze očekávat, že obdobně bude vypadat porovnání i pro další střechy.

Použití kotevních prvků s vyšší návrhovou únosností se jeví ekonomicky jako velmi výhodné. O to více bude nutné při jejich použití v praxi pohlídat technologickou kázeň na stavbě (dodržování geometrie spojů fólií apod.), aby předpoklady vyšší únosnosti kotev nezůstaly pouze na protokolu ze zkušebny a aby vrstvy střešního pláště zůstaly na střeše.

Podklady:
[1] KUTNAR - Střechy s povlakovou hydroizolační vrstvou - Skladby a detaily (konstrukční, technické a materiálové řešení);
[2] ČSN 73 1901 Navrhování střech – Základní ustanovení;
[3] ČSN EN1991-1-4 (73 0035) – Zatížení konstrukcí – č.1-4: Obecná zatížení – Zatížení větrem;
[4] ETAG 006 SYSTÉMY MECHANICKY KOTVENÝCH PRUŽNÝCH STŘEŠNÍCH [5] HYDROIZOLAČNÍCH POVLAKŮ;
[6] Ing. Antonín Žák Ph.D. KAM NÁS ŽENE VÍTR – navrhování stabilizace střech vůči sání větru (prezentace z konference DEN STAVAŘŮ 2015).

Partneři programu